Terreno urbanizable en Venta

€ 380.000
700 m²

Nota

Anuncio actualizado el 20/03/2026
Descripción

referencia: 5196

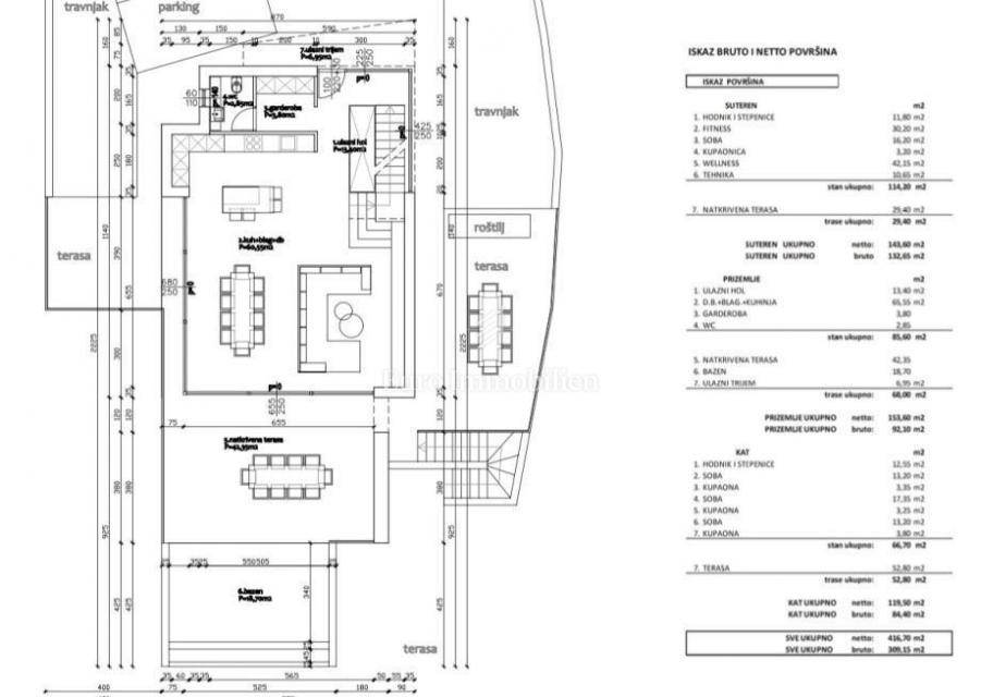
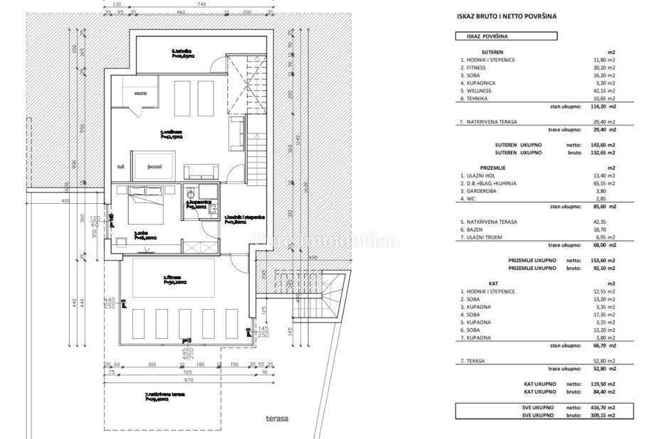
Na mirnoj lokaciji iznad plaže u Ičićima prodaje se zemljište s pogledom na more!
Ishodovana je građevinska dozvola za modernu samostojeću kuću ukupne površine 416m2 koja se proteže kroz suteren, prizemlje i prvi kat.
Od plaže i sadržaja udaljena je tek pet minuta vožnje.

Provizija agencije za kupca iznosi 3% + PDV i plaća se u slučaju kupovine nekretnine kod zaključenja kupoprodajnog Ugovora.

ID CODE: 5196

Euro Immobilien d.o.o.
Mob: 00385 (0)99 444 0660
Tel: +385 51 220 024
E-mail: info@euro-immobilien.hr
www.euro-immobilien.hr
Características
Contrato
Venta
Tipología
Terreno urbanizable
Superficie
700 m²
Información del precio
Precio
€ 380.000
Precio del m²
543 €/m²
Descubre otros ángulos del inmueble
+5
Opciones adicionales

Contactar con el anunciante

O