Terreno urbanizable en Venta

€ 100.000
585 m²

Nota

Anuncio actualizado el 20/03/2026
Descripción

referencia: 5674

Prodaje se građevinsko zemljište u okolici Dobrinja na otoku Krku!

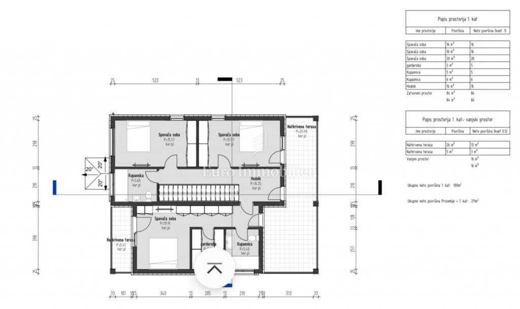
Zemljište površine 585 m2 s gotovim idejnim projekt za kuću s bazenom. Infrastruktura (struja, voda i telefon) se nalazi u neposrednoj blizini. Pristupni put je asfaltiran i vodi do parcele.

Mirna lokacija, okruženo zelenilom.

Za sve informacije i dogovor razgledavanja dostupni smo na broju 0994440660 ili u poslovnici Malinska na adresi Dubašljanska 111.

Provizija agencije za kupca iznosi 3% + PDV i plaća se u slučaju kupovine nekretnine kod zaključenja kupoprodajnog Ugovora.

ID CODE: 5674

Euro Immobilien d.o.o.
Mob: 00385 (0)99 444 0660
Tel: +385 51 220 024
E-mail: info@euro-immobilien.hr
www.euro-immobilien.hr
Características
Contrato
Venta
Tipología
Terreno urbanizable
Superficie
585 m²
Información del precio
Precio
€ 100.000
Precio del m²
171 €/m²
Plano
Descubre otros ángulos del inmueble
+3
Opciones adicionales

Contactar con el anunciante

O