map icon

Piso de cuatro habitaciones Diklo, Zadar, Zadar

ZadarDiklo, Zadar
€ 420.000
4
115 m²
2
No
Terraza

Nota

Anuncio actualizado el 20/03/2026
Descripción

This description has been translated automatically and may not be accurate

referencia: 5862

Apartments for sale in a residential building with a sea view in Diklo - Zadar. Object "A" has a total of three residential units. The project is under construction. The planned completion is in July 2024. Each apartment has a storage room and two parking spaces. They have a sea view. The apartment on the second floor has a roof terrace.

S1 ground floor - 103 m2 - three bedrooms, living room, kitchen, dining room, bathroom, laundry room, covered terrace = €360,000
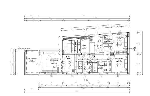
S3 second floor/ PENTHOUSE with roof terrace 115 m2 - three bedrooms, living room, kitchen, dining room, bathroom, laundry room, covered terrace = €420,000

The design of the entire building is modern and practical, high-quality materials and equipment are used during construction, so a thermal facade, air conditioners in every room, underfloor heating, electric blinds, mosquito nets for protection against insects, video intercom, security doors and video surveillance will be installed.

The distance from the beach is 150 m.

Provizija agencije za kupca iznosi 3% + PDV i plaća se u slučaju kupovine nekretnine kod zaključenja kupoprodajnog Ugovora.

ID CODE: 5862

Euro Immobilien d.o.o.
Mob: 00385 (0)99 444 0500
Tel: +385 51 220 024
E-mail: info@euro-immobilien.hr
www.euro-immobilien.hr
Características
Tipología
Piso
Contrato
Venta
Ascensor
No
Superficie
115 m²
Habitaciones
4
Dormitorios
3
Baños
2
Balcón
No
Terraza
Garaje, plazas de aparcamiento
2 en aparcamiento/garaje público
Calefacción
Individual, por aire
Aire acondicionado
Individual, frío/calor
Información del precio
Precio
€ 420.000
Precio del m²
3.652 €/m²
Eficiencia energética
  • Calefacción

    Individual, por aire
  • Aire acondicionado

    Individual, frío/calor
  • Certificación energética

    Inclasificable
Plano
Descubre otros ángulos del inmueble
+2
Opciones adicionales

Contactar con el anunciante

O