Piso de cuatro habitaciones Srima, Vodice, Vodice

€ 716.586
4
183 m²
2
No
Terraza

Nota

Anuncio actualizado el 20/03/2026
Descripción

This description has been translated automatically and may not be accurate

referencia: 5536

NEW BUILDING!!!
FIRST ROW TO THE BEACH

A luxurious apartment first row to the sea in Srima is for sale.

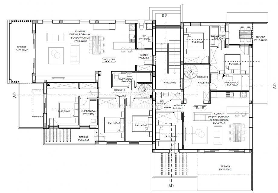
The apartment is located in a residential building with a total of 8 apartments.
The building consists of a ground floor, first, second and third floors.

Distance from the center: 600m

The apartments are equipped with quality windows and doors with electric shutters and mosquito nets, burglar and fireproof entrance doors, underfloor electric heating in the bathrooms. The rooms and living room are equipped with air conditioning and TV connection.
Modern sanitary facilities.

APARTMENT is a two-story apartment, consisting of three bedrooms, two hallways, staircases, two bathrooms, living room, dining room and kitchen on the second floor.
It also has two terraces of 30.56m2 and 18.20m2.
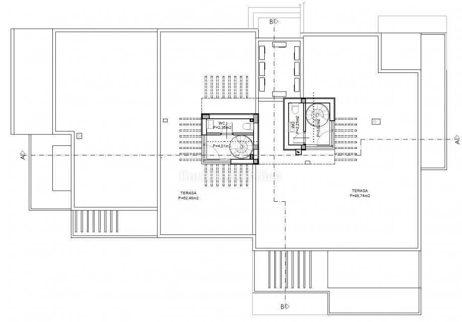
On the third floor there is a staircase, toilet and a large terrace of 98.74m2.
There is 1 parking space.

Provizija agencije za kupca iznosi 3% + PDV i plaća se u slučaju kupovine nekretnine kod zaključenja kupoprodajnog Ugovora.

ID CODE: 5536

Euro Immobilien d.o.o.
Mob: +385994440500
Tel: +385 51 220 024
E-mail: info@euro-immobilien.hr
www.euro-immobilien.hr
Características
Tipología
Piso
Contrato
Venta
Plantas del edificio
3
Ascensor
No
Superficie
183 m²
Habitaciones
4
Dormitorios
3
Baños
2
Balcón
No
Terraza
Garaje, plazas de aparcamiento
1 en aparcamiento/garaje público
Calefacción
Individual, por aire
Aire acondicionado
Individual, frío/calor
Información del precio
Precio
€ 716.586
Precio del m²
3.916 €/m²
Eficiencia energética
  • Calefacción

    Individual, por aire
  • Aire acondicionado

    Individual, frío/calor
  • Certificación energética

    Inclasificable
Plano
Descubre otros ángulos del inmueble
+3
Opciones adicionales

Contactar con el anunciante

O