Terreno urbanizable en Venta

€ 195.000
718 m²

Nota

Anuncio actualizado el 20/03/2026
Descripción

referencia: 7611

Građevinsko zemljište u Vodnjanu s dozvolom i pogledom na more

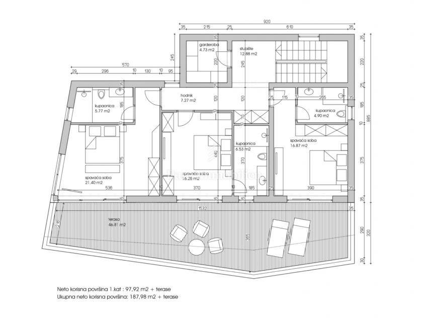
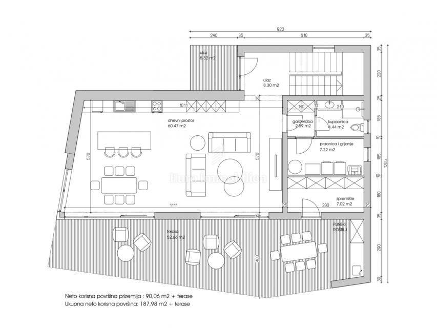
Parcela površine 718 m² nalazi se na rubu građevinske zone u Vodnjanu, na uzvišenju jugozapadne orijentacije s pogledom na more i Nacionalni park Brijuni. Plaćeni su priključci za vodu i struju, kanalizacija se nalazi uz pristupnu cestu, a u cijenu je uključena građevinska dozvola s plaćenim komunalijama za vilu od oko 202 m² s terasama, 3 spavaće sobe i 4 kupaonice.

Najbliža trgovina udaljena je 600 m, pristup autoputu i osnovna škola 1 km. Parcela je okružena prirodom, a pješačke i biciklističke staze počinju u neposrednoj blizini.

Provizija agencije za kupca iznosi 3% + PDV i plaća se u slučaju kupovine nekretnine kod zaključenja kupoprodajnog Ugovora.

ID CODE: 7611

Euro Immobilien d.o.o.
Mob: 00385 (0)99 444 0500
Tel: +385 51 220 024
E-mail: info@euro-immobilien.hr
www.euro-immobilien.hr
Características
Contrato
Venta
Tipología
Terreno urbanizable
Superficie
718 m²
Información del precio
Precio
€ 195.000
Precio del m²
272 €/m²
Descubre otros ángulos del inmueble
+11
Opciones adicionales

Contactar con el anunciante

O