Piso de tres habitaciones Ulica Jože Malekovića, Zaprešić

€ 232.920
3
64 m²
2
2

Nota

Anuncio actualizado el 07/04/2026
Descripción

This description has been translated automatically and may not be accurate

referencia: 413

ZANEA – A place to call home
 
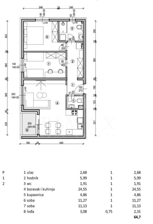
Three-room apartment S22B on the second floor, 64,70 m²
 
Purchase directly from the investor – the buyer does NOT pay an agency commission!
 
The new residential project ZANEA is a place where modern construction, thoughtful architecture, high-quality materials and equipment, and the pleasant surroundings of Zaprešić come together in a harmonious whole—offering an ideal balance between peaceful living and excellent connectivity with Zagreb.
 
Located in Jože Malekovića Street (bb), in close proximity to all essential amenities for everyday life—kindergarten, market, train station, bus stop, primary school, shops, and the city center—this residential complex provides everything needed for a simple and high-quality lifestyle.
 
The ZANEA project is designed as a modern residential complex divided into two separate blocks (A and B), with a total of 66 apartments of various layouts and sizes, tailored to different life needs—whether for individuals, couples, or families. The apartments and 66 storage units are distributed across four above-ground floors (ground floor, first and second floor, and recessed top floor), with a carefully planned layout ensuring a clear and functional living concept.
 
The residential blocks are connected by an underground level with 80 garage parking spaces, while 52 outdoor parking spaces are located around the complex. Each apartment is guaranteed at least two parking spaces and one storage unit, ensuring exceptional functionality and quality of living.
 
Thanks to its peaceful location in Zaprešić, proximity to key amenities, and excellent transport connections, the ZANEA project represents an excellent choice for comfortable family living, as well as a secure real estate investment.
 
Construction start: 07/2026
Planned move-in: 12/2027
 
Projected energy class: A+
 
NOTE: 
The listed prices include VAT, and the buyer does NOT pay real estate transfer tax or agency commission. Parking spaces and storage units are not included in the apartment price—purchase of one storage unit, one garage parking space, and one outdoor parking space is mandatory with each apartment.
 
 
STANDARD EQUIPMENT
 
SEISMIC PROTECTION
Reinforced concrete structural system using advanced technologies and materials ensures earthquake resistance and increases occupant safety.
 
SAFETY AND FIRE PROTECTION
Entrance doors are burglary-resistant, smoke-proof, self-closing, and fire-resistant (30 minutes), with sound insulation, manufactured by the renowned Italian company Dierre—ensuring high safety standards.
 
ELEVATOR
Two low-noise elevators from Schindler, equipped with modern and spacious cabins, provide reliability, speed, and comfort.
 
MATERIALS AND EQUIPMENT
PVC exterior joinery (anthracite outside, white inside), triple-glazed insulated glass, tilt-and-turn fittings, aluminum electric shutters, large-format premium ceramics, three-layer oak parquet (15 mm, PR BIS class, invisible matte finish), white skirting boards matching interior doors, high-quality sanitary equipment from Laufen and Hansgrohe, interior partition walls made of gypsum boards (system W112), heating and Cooling, energy-efficient system: underfloor heating and hot water via air-to-water heat pumps (Vaillant). Cooling and additional heating via inverter air conditioners (Samsung), with outdoor units installed on the roof.
 
TECHNICAL EQUIPMENT
PEX plumbing installations, individual consumption meters (electricity, water), low-noise drainage pipes, color video intercom, modular sockets and switches, kitchen ventilation with spiro ducts, mechanical ventilation in bathrooms using low-noise fans
 
PARKING
Each apartment includes at least one garage parking space (-1 level) and one outdoor parking space. All spaces are clearly marked and easily accessible.
 
SURROUNDINGS
Carefully designed environment combining functionality and aesthetics, asphalted and marked roads and parking areas, landscaped green areas, fenced gardens with separate entrances, lawns sown and connected to water supply, decorative exterior lighting enhancing the architecture, energy efficiency, ETICS façade system with 15 cm thermal insulation and decorative plaster finish, combined with heat pumps and triple-glazed PVC joinery, ensures an A+ energy-efficient building.
 
WARRANTY
Multi-year warranty on the structure, waterproofing, and construction works, as well as on installed equipment from reputable manufacturers. Organized building maintenance and management are ensured.
Si deseas más información puedes hablar con Antonio Arlović.
Características
Tipología
Piso
Contrato
Venta
Planta
2 planta
Plantas del edificio
3
Ascensor
Superficie
64 m²
Habitaciones
3
Dormitorios
2
Baños
2
Calefacción
Individual, por aire, por bomba de calor
Otras características
  • Carpintería exterior de vidrio/PVC
  • Puerta blindada
  • Videoportero
Información del precio
Precio
€ 232.920
Precio del m²
3.639 €/m²
Desglose de los costes
Gastos de comunidad
Ningún gasto de comunidad
Eficiencia energética

Consumo de energia

A+

Plano
Zapresic, Zapresic
Descubre otros ángulos del inmueble
+19
Opciones adicionales

Contactar con el anunciante

O