Piso de tres habitaciones Centar, Zaprešić

€ 449.680
3
160 m²
B

Nota

Anuncio actualizado el 13/04/2026
Descripción

referencia: EUROVILLA-933963

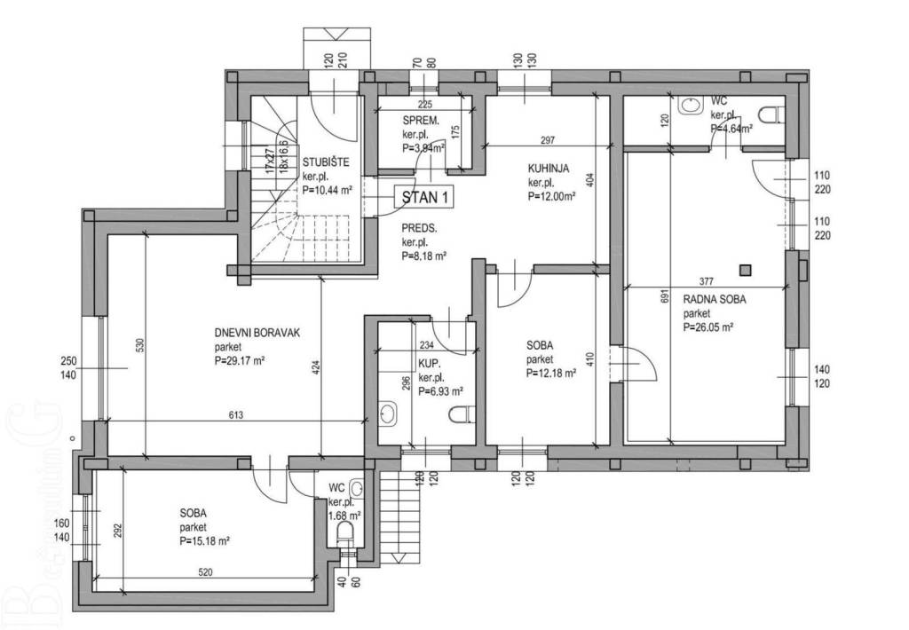
Zaprešić, Centar, četverosoban stan s vrtom ukupne netto površine 160 m2 koji se nalazi u prizemlju zgrade izgrađene 2025. godine. Sastoji se od ulaznog prostora, dnevnog boravka s blagovaonom, kuhinje, 2 spavaće sobe, gostinjskog WC-a, kupaonice i velike prostorije 26 m2 s vlastitim izlazom iz zgrade koja se može koristiti kao stambeni ili poslovni prostor.Pripadaju mu 4 vanjska parkirna mjesta, spremište u podrumu zgrade površine 18,5 m2 i vrt 168 m2.Nalazi se na izvanrednoj i frekventnoj lokaciji, u neposrednoj blizini javnog prijevoza, trgovina, osnovne škole i svih ostalih sadržaja potrebnih za svakodnevni život.Sve ostale informacije na upit.... Više na eurovilla.hr, ID: 933963
Si deseas más información puedes hablar con Filip Vuković.
Características
Tipología
Piso
Contrato
Venta
Planta
Planta baja
Superficie
160 m²
Habitaciones
3
Dormitorios
3
Detalle superficie

Vivienda

Planta
Planta baja
Superficie
160,0 m²
Coeficiente
100%
Tipo de superficie
Principal
Superficie construida
160,0 m²
Información del precio
Precio
€ 449.680
Precio del m²
2.811 €/m²
Plano
Descubre otros ángulos del inmueble
+17
Opciones adicionales

Contactar con el anunciante

O