Piso de cuatro habitaciones nuevo, planta baja, Marina

€ 996.360
4
1 m²
2
B
Terraza

Nota

Anuncio actualizado el 17/04/2026
Descripción

This description has been translated automatically and may not be accurate

referencia: RE766977

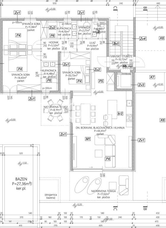
Located on the ground floor of a small duplex residential building in Marina, this spacious apartment in a new construction is designed for buyers seeking larger square footage, functional layout, and a higher level of privacy compared to traditional residential projects. The apartment is particularly suitable for families and buyers who desire a sense of privacy with the advantages of modern new construction, as well as for investors looking for a property with potential for high-category tourist rentals. The total net area of the apartment is 122.92 m². The apartment consists of an entrance area, a spacious living room with a kitchen of 44.41 m², three bedrooms, two bathrooms, an additional toilet, and a storage room. The main living area provides access to two covered terraces of 8.39 m² and 17.02 m², which, together with the pool and an outdoor green area of 48.08 m², form a complete unit for outdoor living, relaxation, and socializing. The apartment also includes a technical room located within the building, further enhancing the practicality of space utilization. The apartment will be equipped with underfloor heating and cooling systems, first-class parquet flooring, and high-quality porcelain tiles. It is planned to install sanitary ware from renowned manufacturers and security doors, ensuring long-term quality and safety. It is a small duplex residential building with a total of five apartments spread over four floors, designed with an emphasis on privacy, modern amenities, and everyday living functionality. The apartment includes one garage and one outdoor parking space, further increasing the level of comfort. The project is located in a quiet part of Marina, in an environment that offers a good balance between privacy and accessibility to amenities, with the sea and well-maintained beaches just a few minutes' walk away. Shops, restaurants, cafes, and the marina are nearby, while transport links provide quick access to Trogir and Split. The location is suitable for year-round living, as well as an investment for tourist rentals, given the attractiveness of the destination and its proximity to the sea. Construction has begun, and the project completion is planned for December 2026. Payment is possible in phases of construction. For more information and to arrange a viewing, please feel free to contact us.
Características
Tipología
Piso
Contrato
Venta
Planta
Planta baja
Plantas del edificio
2
Ascensor
Superficie
1 m²
Habitaciones
4
Dormitorios
3
Baños
2
Terraza
Garaje, plazas de aparcamiento
2 en aparcamiento/garaje público
Calefacción
Central, suelo radiante, por bomba de calor
Vistas
Mar
Información del precio
Precio
€ 996.360
Precio del m²
996.360 €/m²
Eficiencia energética
  • Estado

    Nuevo / En construcción
  • Calefacción

    Central, suelo radiante, por bomba de calor
  • Certificación energética

    Exento
Plano
Descubre otros ángulos del inmueble
+5
Opciones adicionales

Contactar con el anunciante

O