Piso nuevo, primera planta, Gradac

€ 268.200
5+
75 m²
1
1

Nota

Anuncio actualizado el 18/04/2026
Descripción

This description has been translated automatically and may not be accurate

referencia: 3665-1

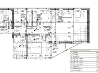
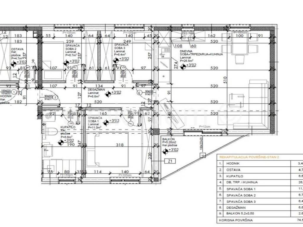
We are selling a very attractive new building in the quiet Drvenik on the Makarska Riviera. It is a smaller building with a total of six apartments (two on each floor first, second, third). Apartment S2 is located on the first floor. The apartment has a surface area of 74.50m2 and consists of three bedrooms, a hallway, a storage room, a bathroom and a spacious living room with a kitchen and dining room. We would like to emphasize that the apartment also has a nice balcony, ideal for quiet summer evenings. An outdoor parking space can be provided for an additional fee. Construction begins in the fall of 2026 and is planned to be completed in a year and a half, and since the investor is a legal entity, there is no obligation to pay the 3% real estate tax. The location is approximately 250m from the sea and all amenities such as restaurants and shops. The apartments are very modern and functionally designed and will be built exclusively with the highest quality materials with high-standard final equipment. Ownership is in order.

Viewing this property is possible only with the signing of our standard agency agreement, which is the basis for further actions related to the sale of real estate, all in accordance with the Law on Data Protection and the Real Estate Brokerage Act.
Si deseas más información puedes hablar con Vedrana Kaćanski.
Características
Tipología
Piso
Contrato
Venta
Planta
1 planta
Superficie
75 m²
Habitaciones
5+
Dormitorios
3
Baños
1
Aire acondicionado
Centralizada, frío/calor
Información del precio
Precio
€ 268.200
Precio del m²
3.576 €/m²
Eficiencia energética
  • Estado

    Nuevo / En construcción
  • Aire acondicionado

    Centralizada, frío/calor
  • Certificación energética

    Inclasificable
Descubre otros ángulos del inmueble
+2
Opciones adicionales

Contactar con el anunciante

O