Piso de dos habitaciones nuevo, primera planta, Vodice

€ 250.000
2
73 m²
1
1
No
Terraza

Nota

Anuncio actualizado el 21/04/2026
Descripción

This description has been translated automatically and may not be accurate

referencia: S2375

Vodice - NUEVA CONSTRUCCIÓN Apartamento S3 con amplia terraza

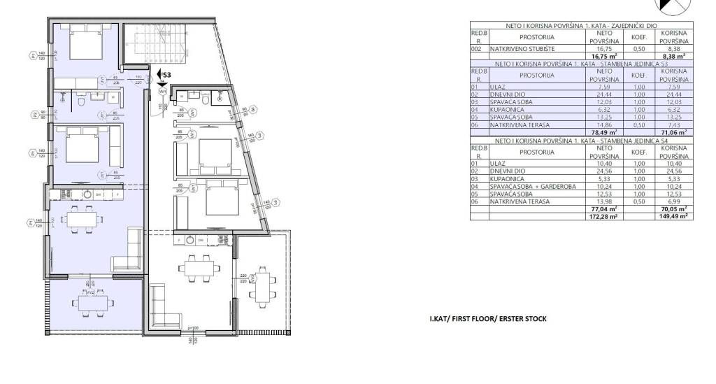
Vodice - se vende apartamento en edificio de nueva construcción con vista al mar, a 750 m de la playa y del centro. El apartamento está orientado al sur, se encuentra en el primer piso de un edificio residencial pequeño y tiene una superficie neta habitable de 74,06 m2. Consta de pasillo, dos dormitorios, baño, cocina con comedor, sala de estar y terraza de 14,86 m2. Al apartamento le corresponden dos plazas de aparcamiento. PRECIO: 250.000,00 € (IVA incluido en el precio de la propiedad)

El comprador no paga impuesto sobre la transmisión de bienes inmuebles.

El edificio fue construido en 2026, cuenta con un total de 6 unidades residenciales. Está construido con materiales de calidad y equipado según los últimos estándares de construcción: fachada de poliestireno, carpintería de PVC color antracita, mosquiteras, persianas con elevadores eléctricos, azulejos cerámicos, laminado en los dormitorios, sanitarios modernos en el baño, calentador eléctrico de agua caliente, calefacción por suelo radiante en el baño y sala de estar, aire acondicionado en la sala de estar y dormitorios, muro de vidrio en la terraza....
Características
Tipología
Piso | Tipo de inmueble medio
Contrato
Venta
Planta
1 planta
Plantas del edificio
2
Ascensor
No
Superficie
73 m²
Habitaciones
2
Dormitorios
2
Baños
1
Balcón
No
Terraza
Calefacción
Individual, por radiadores, alimentación eléctrica
Aire acondicionado
Individual
Vistas
Mar
Otras características
  • Puerta blindada
Información del precio
Precio
€ 250.000
Precio del m²
3.425 €/m²
Eficiencia energética

Consumo de energia

A

Plano
Descubre otros ángulos del inmueble
+21
Opciones adicionales

Contactar con el anunciante

O