Piso de cuatro habitaciones nuevo, primera planta, Ružmarinka, Zagreb

€ 1.120.000
4
1 m²
2
1
Terraza

Nota

Anuncio actualizado el 29/04/2026
Descripción

This description has been translated automatically and may not be accurate

referencia: RE118200

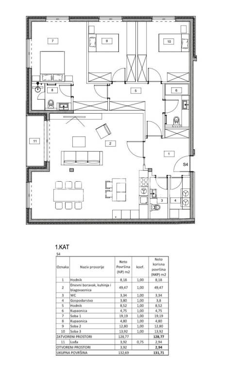
A top-tier penthouse is for sale in an exclusive new building located in the attractive area of Kušlanova / Škrlčeva, ideal for buyers seeking a modern apartment with an emphasis on privacy, design, and quality of life. This is a project of a small urban building with a total of 8 apartments, ensuring a peaceful and pleasant living experience. Construction is planned to begin in the summer of 2026, with completion expected at the end of 2027. The penthouse is located on the top floor and spans a total of 188.24 m², of which the enclosed living space is 132.14 m², while a spacious terrace of as much as 56.10 m² represents the key value of this property. The terrace offers an ideal space for relaxation, socializing, and enjoying the outdoors with a feeling of complete privacy. The apartment consists of an entrance hall, a spacious living room connected to the kitchen and dining area, two bedrooms, two bathrooms, and additional storage space. The open-space living area with large glass walls allows for abundant natural light and direct connection to the terrace, further emphasizing the sense of space and comfort. The project is designed in accordance with the latest construction and equipment standards, and includes: a heat pump with underfloor heating and cooling a smart home system for managing lighting, heating, and security top-quality ceramics and high-class parquet floors aluminum carpentry with triple-glazed glass and electric blinds anti-burglary and fire-resistant entrance doors a video intercom and preparation for electric vehicle charging stations The apartment comes with a garage parking space and a storage unit. The location offers excellent connectivity to the city center, with proximity to all important amenities – shops, schools, kindergartens, public transport, and business zones, making this property ideal both for living and as a long-term investment. This penthouse represents a rare opportunity to purchase a property that combines contemporary design, top-quality equipment, and one of the most sought-after locations in Zagreb. For more information and to reserve an apartment, feel free to contact us.
Características
Tipología
Piso
Contrato
Venta
Planta
1 planta
Plantas del edificio
3
Ascensor
Superficie
1 m²
Habitaciones
4
Dormitorios
3
Baños
2
Terraza
Garaje, plazas de aparcamiento
1 en garaje privado, 1 en aparcamiento/garaje público
Calefacción
Central, suelo radiante, por bomba de calor
Aire acondicionado
Individual, frío/calor
Información del precio
Precio
€ 1.120.000
Precio del m²
1.120.000 €/m²
Eficiencia energética
  • Estado

    Nuevo / En construcción
  • Calefacción

    Central, suelo radiante, por bomba de calor
  • Aire acondicionado

    Individual, frío/calor
  • Certificación energética

    Exento
Plano
Descubre otros ángulos del inmueble
+2
Opciones adicionales

Contactar con el anunciante

O