Piso de cuatro habitaciones Jelenovac, Črnomerec, Šestinski dol, Zagreb

€ 1.350.000
4
180 m²
B
No
Terraza

Nota

Anuncio actualizado el 27/04/2026
Descripción

This description has been translated automatically and may not be accurate

referencia: 4340

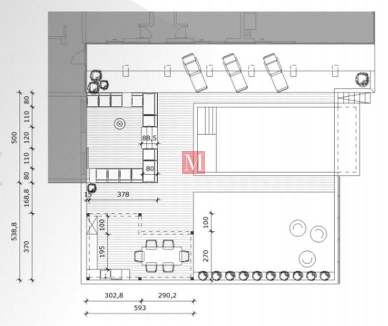
Luxurious, designer-designed 4-bedroom apartment (130m2) on the ground floor of a new building, with a jacuzzi and sauna (50m2) and a garden (150m2) with an infinity pool in an exclusive location in the Jelenovac forest park.
It consists of an open space kitchen and living room with a wood-burning fireplace, two bedrooms with a shared bathroom, a guest toilet and a master bedroom with a dressing room and bathroom (shower).
The interior is characterized by top-quality materials and appliances, as well as details that have been given special attention. The kitchen appliances are Bosch and the wine refrigerator is Samsung. The lighting is LED built-in and is controlled via a smart home system, as well as heating/cooling, sound system and blinds. The living room has a home cinema, and the apartment is covered by video surveillance and an alarm.
The wellness area consists of a jacuzzi, a Finnish sauna and a Klafs Turkish bath. In the garden there is an outdoor kitchen with a barbecue and a lounge. The pool is fully automated with electrolysis and heating, and is in operation from 1.4. until 1.11.
The microlocation is one of the most attractive in the city, in the quiet and green surroundings of the Jelenovac forest, just a few minutes' drive from Ilica and the city's events.
The apartment comes with one garage and one outdoor parking space, as well as a storage room in the basement (15m2).
Additional information on personal request.
Agency commission: 3% + VAT.

ID CODE: 4340

METROPOLA agencija za nekretnine
Preradovićeva 20, 10000 Zagreb, Hrvatska
T + 385 (1) 2421 977
E-mail: info@metropola.hr
www.metropola.hr
Características
Tipología
Piso
Contrato
Venta
Planta
Planta baja
Ascensor
No
Superficie
180 m²
Habitaciones
4
Dormitorios
3
Balcón
No
Terraza
Garaje, plazas de aparcamiento
1 en garaje privado
Aire acondicionado
Individual, frío/calor
Información del precio
Precio
€ 1.350.000
Precio del m²
7.500 €/m²
Eficiencia energética

Consumo de energia

A+

Plano
Descubre otros ángulos del inmueble
+38
Opciones adicionales

Contactar con el anunciante

O