Piso de tres habitaciones nuevo, segunda planta, Šibenik

€ 426.000
3
67 m²
1
2
Terraza

Nota

Anuncio actualizado el 30/04/2026
Descripción

This description has been translated automatically and may not be accurate

referencia: 47354

ŠIBENIK, BRODARICA 2nd row by the sea, top floor, view, terrace

Top floor, terrace and proximity to the sea - a simple combination that makes this apartment in Brodarica a pleasant and long-term smart choice.

The project consists of two smaller buildings with 6 apartments each, distributed through the ground floor and two floors, which means only 2 apartments per floor and significantly more privacy.
The buildings are positioned in the 1st and 2nd row by the sea, with all apartments having a view of the sea. This microlocation brings what is the most difficult to find - immediate proximity to the sea without compromise and in the long term one of the most valuable positions on the market.

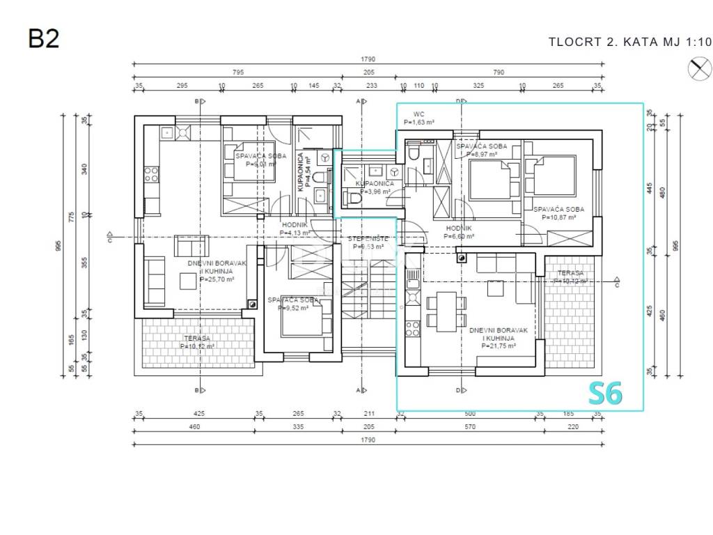
Apartment S6 is located on the 2nd (back) floor of building B2 (2nd row by the sea), has a net area of 72.50 m (68.75 m of internal living space) and is south facing.
It consists of 2 bedrooms, a hallway, a bathroom, an additional toilet and a living room with a kitchen and a dining room that naturally opens onto a terrace with a sea view.

The living area naturally continues onto the terrace, which further opens up and provides a pleasant atmosphere for everyday living.

The position on the top floor additionally ensures more privacy and a quieter stay, without noise above.

LAYOUT
open space living room with kitchen and dining room
exit to the terrace (14.75 m) with a beautiful open view of the sea
2 bedrooms
bathroom
additional toilet
parking space

BUILDING QUALITY AND EQUIPMENT
underfloor heating (living area + bathroom)
air conditioning in all rooms
triple-glazed windows + electric shutters + mosquito nets
large sliding glass walls (maximally open the space to the sea)
glass railings (do not obstruct the view)
modern bathrooms
intercom
TV and internet in all rooms

LOCATION
Brodarica brings a balance between everyday life and proximity to the sea - close enough to the city, but without the city crowds. Buyers choose this location because it allows quick access to Šibenik, but also a quieter rhythm of life out of season. A special value is the direct proximity to the sea, which preserves the value of the property in the long term.
sea: 20 m
Šibenik center: 5.5 km (~10 min drive)
supermarket: 900 m
school / kindergarten: approx. 1.5 km
Krka National Park and highway access: approx. 10 min
The microlocation is in the 2nd row to the sea, with the beach just a few steps away close enough for daily use, and with a greater level of privacy.

Brodarica is located in the heart of central Dalmatia, right next to Šibenik, which gives it a strategic position between two key regional centers Zadar and Split. Thanks to the proximity of the highway and two international airports Split Airport and Zadar Airport the location is extremely well connected and easily accessible throughout the year.

WHO IS THE PROPERTY IDEAL FOR
For buyers who want an apartment on the top floor, just a few steps from the sea, with a terrace and a pleasant space for everyday living or tourist rental.

Apartments in this location, in the 2nd row by the sea, quickly find buyers - contact us for availability and more information.

Dear clients, the agency commission is charged in accordance with the General Terms and Conditions:
www.dux-nekretnine.hr/opci-uvjeti-poslovanja

ID CODE: 47354

Ivan Bego
Agent pripravnik
Mob: +385 91 312 1121
Tel: +385 91 480 8808
E-mail: ivan@dux-dalmacija.com
www.dux-nekretnine.hr
Si deseas más información puedes hablar con Ivan Bego.
Características
Tipología
Piso
Contrato
Venta
Planta
2 planta
Superficie
67 m²
Habitaciones
3
Dormitorios
2
Baños
1
Balcón
No
Terraza
Aire acondicionado
Individual, frío/calor
Información del precio
Precio
€ 426.000
Precio del m²
6.358 €/m²
Eficiencia energética

Consumo de energia

A+

Descubre otros ángulos del inmueble
+20
Opciones adicionales

Contactar con el anunciante

O