Piso de tres habitaciones nuevo, Vodice

€ 345.000
3
91 m²
2
No
Terraza

Nota

Anuncio actualizado el 29/04/2026
Descripción

This description has been translated automatically and may not be accurate

referencia: K257

A modern duplex apartment S1 is for sale in Vodice, located in a quiet and pleasant area, ideal for family living or holiday use. The apartment is currently in the final stage of completion, with move-in planned for summer 2026.

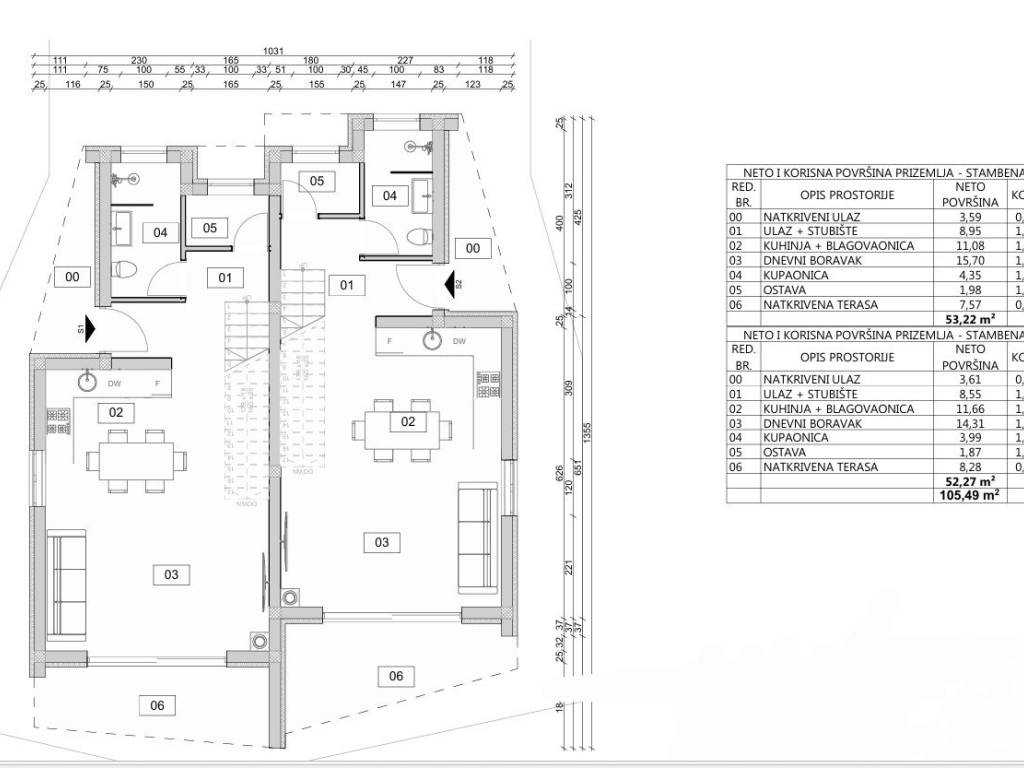
Lower level:
A covered entrance leads into a spacious open-plan living area combining the kitchen, dining room, and living room. The living area opens onto a covered terrace that continues to a private garden area – perfect for relaxing and socializing. This level also includes a bathroom and a practical storage room.

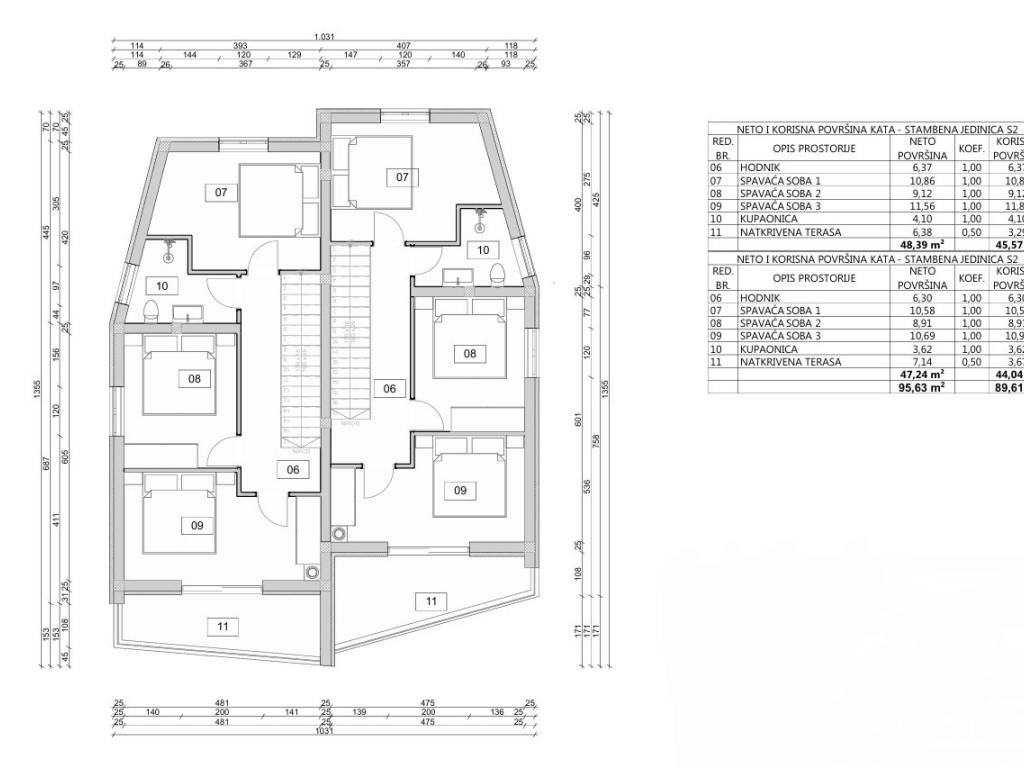
Upper level:
Internal stairs lead to the upper floor, where there are three bedrooms and a bathroom. One of the bedrooms has access to its own covered terrace, offering additional outdoor space.

Additional features:
• Private garden area
• Two parking spaces
• High-quality PVC joinery with electric shutters and mosquito screens
• Underfloor heating
• Preparation for a heat pump

The apartment is in a great location – the beach and town center are less than a 10-minute walk away.

Vodice is one of the most desirable destinations on the Adriatic coast, known for its beautiful beaches, rich gastronomy, and lively atmosphere. Nearby are Krka National Park and Kornati National Park.

For more information or to arrange a viewing, feel free to contact us!





The agency commission is 2% of the purchase price.
Características
Tipología
Piso | Tipo de inmueble medio
Contrato
Venta
Ascensor
No
Superficie
91 m²
Habitaciones
3
Dormitorios
3
Baños
2
Balcón
No
Terraza
Calefacción
Individual, suelo radiante
Aire acondicionado
Individual
Otras características
  • Jardín privado y comunitario
  • Puerta blindada
Información del precio
Precio
€ 345.000
Precio del m²
3.791 €/m²
Eficiencia energética
  • Año de construcción

    2025
  • Estado

    Nuevo / En construcción
  • Calefacción

    Individual, suelo radiante
  • Aire acondicionado

    Individual
Descubre otros ángulos del inmueble
+21
Opciones adicionales

Contactar con el anunciante

O