Piso de tres habitaciones Trnava, Trnava, Zagreb

€ 288.360
3
80 m²
3

Nota

Anuncio actualizado el 03/03/2026
Descripción

referencia: EUROVILLA-500185

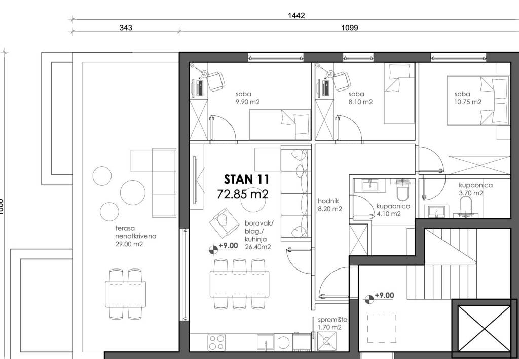
Četverosoban stan zatvorene površine 72,85 m2 smješten na 3. katu.Sastoji se od hodnika, 2 kupaonice, 3 spavaće sobe, spremišta, dnevnog boravka, kuhinje s blagovaonicom te nenatkrivene terase.Uz stan je obavezna kupnja i spremišta te parkirnog mjesta.-----Projekt suvremene stambene novogradnje s liftom izvedene u armirano-betonskoj konstrukciji s monolitnim međukatnim pločama. Pregradni zidovi izrađeni su po Knauf sustavu s ispunom od mineralne vune, a zidovi između stanova dodatno su toplinski i zvučno izolirani. Objekt je projektiran s ravnim, neprohodnim krovom u višeslojnoj izvedbi te ETICS fasadom s mineralnom vunom i stiroporom debljine 15 cm i završnim slojem silikatne žbuke.Vanjska PVC stolarija opremljena je toplinski izoliranim roletama na elektromotorni pogon, kliznim stijenama i komarnicima na svim otvorima. Unutarnja stolarija izrađena je od drva, sa zvučno izoliranim vratima, dok su ulazna vrata protuprovalna, protupožarna i zvučno izolirana.Zajednički dijelovi zgrade uključuju ulaz i stubišta obložena granitom, videonadzor, te posebno brojilo plina, vode i struje za svaki stan s mogućnošću daljinskog očitanja. U okolišu su predviđeni asfaltirani i betonski kolni prilazi, hortikulturno uređene zelene površine, dekorativna rasvjeta i odvojeni prostor za spremanje otpada.Stanovi imaju visinu prostorija od od 260 do 270 cm u dnevnim dijelovima i od 250 cm - 260 cm u kupaonicama i hodnicima. Sanitarne prostorije opremljene su kvalitetnim uređajima svjetskih proizvođača poput GROHE i TECE, s fleksibilnom hidroizolacijom, keramikom I. klase te podnim grijanjem. Predviđena je mogućnost odabira između kade ili tuš izvedbe s paravanima od kaljenog stakla. Podovi stanova obloženi su višeslojnim hrastovim parketom, dok su kuhinje, kupaonice i lođe izvedene u keramičkim pločicama.Grijanje i priprema tople vode predviđeni su putem kondenzacijskih plinskih bojlera i podnog grijanja u svim prostorijama, uz termostate u svakoj sobi. Stanovi će biti klimatizirani inverter klima uređajima (multi-split sustav). Ventilacija sanitarnih prostora riješena je niskošumnim ventilatorima, a kuhinje imaju predviđene odsisne sustave.Elektroinstalacije uključuju videoportafon u boji, LED rasvjetu, informatičku mrežu cat 6, utičnice za TV i internet u svakoj sobi te rolete na elektromotorni pogon. Sve kupaonice imaju dodatne priključke i rasvjetu prilagođenu modernom standardu.Investitor daje jamstvo na konstrukciju i hidroizolaciju od 10 godina, na ostale radove 2 godine, a na opremu i uređaje prema jamstvu proizvođača. Posebna pažnja posvećena je odabiru materijala i izvedbi, pri čemu su korišteni isključivo kvalitetni i provjereni sustavi, čime je osigurana trajnost i visoki standard stanovanja.... Više na eurovilla.hr, ID: 500185
Si deseas más información puedes hablar con Nenad Tatarinov.
Características
Tipología
Piso
Contrato
Venta
Planta
3
Superficie
80 m²
Habitaciones
3
Dormitorios
3
Detalle superficie

Vivienda

Planta
3
Superficie
80,1 m²
Coeficiente
100%
Tipo de superficie
Principal
Superficie construida
80,1 m²
Información del precio
Precio
€ 288.360
Precio del m²
3.605 €/m²
Eficiencia energética
  • Estado

    Nuevo / En construcción
  • Certificación energética

    Exento
Plano
Descubre otros ángulos del inmueble
+10
Opciones adicionales

Contactar con el anunciante

O