Piso de dos habitaciones Okrug Gornji, Okrug

€ 320.000
2
65 m²
2
Terraza

Nota

Anuncio actualizado el 03/03/2026
Descripción

referencia: EUROVILLA-927132

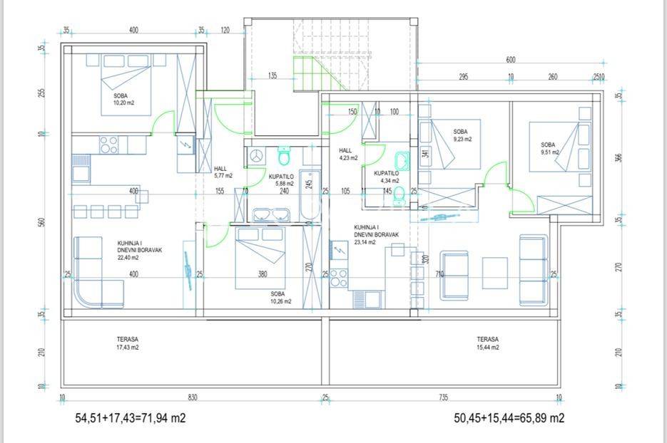
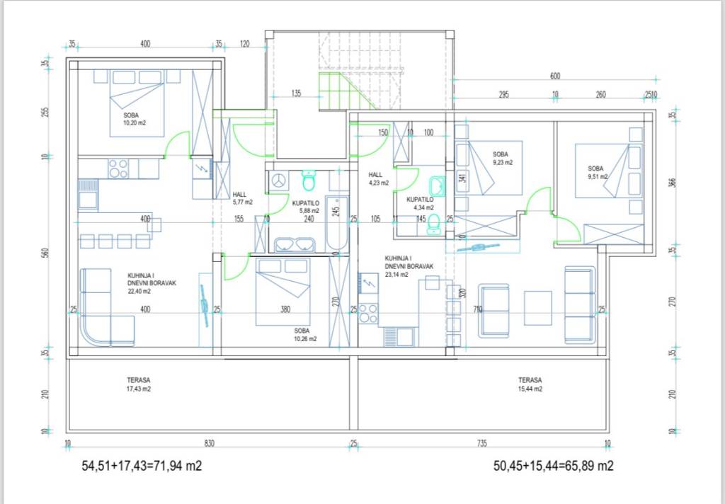
U popularnom odmaralištu srednje Dalmacije, Okrugu Gornjem na Čiovu gradi se stambeni objekta s 8 apartmana na pješačkoj udaljenosti od plaže od 450 m.Objekt se gradi na 3 etaže (prizemlje, prvi kat i drugi kat) uz iskoristivu krovnu terasu koja pripada stanovima na 2 katu.Apartman S8 se sastoji od dnevnog prostora površine 23,14 m2 (kuhinja, blagovaonica i dnevni boravak), dvije spavaće sobe, kupaonice površine 4,34 m2, ulaznog prostora površine 4,23 m2 i natkrivene terase površine 15,44 m2.Apartmanu S8 pripada i nenatkrivena krovna terasa od 68 m2.Svi apartmani će biti opremljeni klima uređajima u dnevnom prostoru a podne obloge će biti od keramičkih pločica. Stakla će biti troslojna a vanjska fasadna izolacija će biti od stiropora debljine 8 cm.U fazi izgradnje još je moguće dogovarati uređenje interijera.Svakom apartmanu pripada jedno vanjsko parking mjesto.Investitor je fizička osoba a način plaćanja je po fazama gradnje.Očekivani završetak objekta i useljenje je krajem 2026 godine.Kako jeotok Čiovo svojevrstan produžetak grada Trogira, nudi pregršt mogućnosti za odmor, rekreaciju i kupanje te razgledavanje mnogobrojnih povijesnih spomenika.Mediteranska vegetacija, arhipelag s malim slikovitim otočićima, blaga klima i predivne plaže u skrovitim zaljevima čine ovo mjesto poželjnom destinacijom za stanovanje I odmor.Dodatne informacije - udaljenosti od važnijih lokacija:Plaža: 450 m / Trogir: 4,5 km / zračna luka: 8 km / Split: 30 kmKupovina: 150 m / restoran: 150 m / ljekarna: 200 m / banka: 300 mZa sva dodatna pitanja stojim na raspolaganju.... Više na eurovilla.hr, ID: 927132
Si deseas más información puedes hablar con Domagoj Zekan.
Características
Tipología
Ático
Contrato
Venta
Planta
2
Superficie
65 m²
Habitaciones
2
Dormitorios
2
Terraza
Detalle superficie

Vivienda

Planta
2
Superficie
65,9 m²
Coeficiente
100%
Tipo de superficie
Principal
Superficie construida
65,9 m²
Información del precio
Precio
€ 320.000
Precio del m²
4.923 €/m²
Eficiencia energética
  • Estado

    Nuevo / En construcción
  • Certificación energética

    Exento
Plano
Descubre otros ángulos del inmueble
+9
Opciones adicionales

Contactar con el anunciante

O