Piso de dos habitaciones nuevo, primera planta, Privlaka

€ 270.000
2
85 m²
1
1
No
Balcón

Nota

Anuncio actualizado el 15/01/2026
Descripción

This description has been translated automatically and may not be accurate

referencia: iro-191

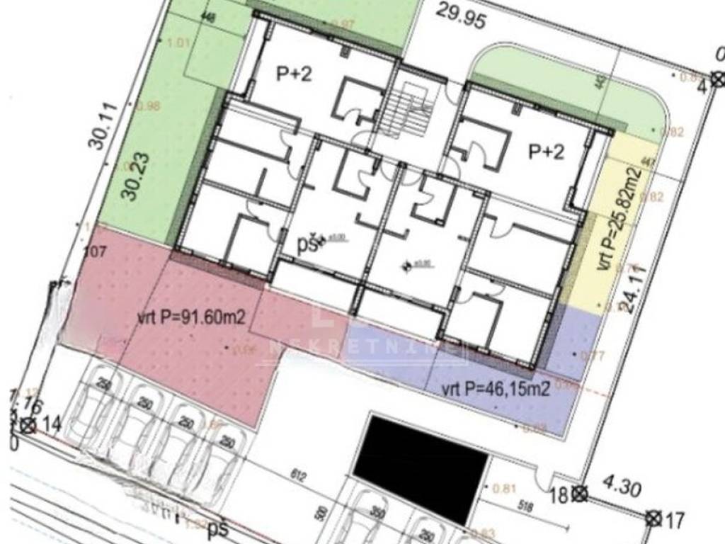
A complex of three smaller residential buildings/urban villas, Privlaka near Zadar and Nin.
They are located only 100 meters from the sea. Each villa has its own swimming pool (shared by all residents) in its own garden. The apartments on the ground floor have gardens, and the apartments on the top (2nd) floor have a roof terrace. Each apartment also has one outdoor parking space.
Villa Astoria has six residential units, and Villa Estera and Villa Gina (sold) have ten residential units (ground floor and two floors).
The buildings are in the final stage of renovation, and the completion of construction and moving into the buildings is planned for December 2025.
The buildings are built and decorated with top-quality materials, 1st class; fire and burglar-proof entrance doors to the apartments, anthracite-colored exterior PVC joinery, three-layer with electric roller shutters and mosquito nets, air conditioning in all rooms (living room and bedrooms), underfloor heating in bathrooms, 10 cm thick thermal facade (expected energy class A+), video intercom at the entrance to the buildings.
The floors will be covered with ceramics (of the highest quality).
The buildings are connected to the city water supply and sewage system.

The purchase of real estate is direct through the investor.
The buyer does not pay any commission for the purchase of real estate!

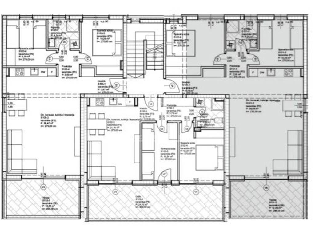
VILLA ESTERA:

Apartment S5 on the 1st floor, two bedrooms, consists of: hallway, dining room with kitchen and living room (area 36.84 m2), entrance hall, two bedrooms (area 13.77 m2 and 10.37 m2), bathroom (area 4.29 m2) and covered terrace (area 12.86 m2 x 0.5 = 6.43 m2).
The orientation of the apartment is SOUTHEAST.
The apartment also has one parking space.
The total area of ​​the apartment with all accessories is 85.77 m2.
Características
Tipología
Piso | Tipo de inmueble medio
Contrato
Venta
Planta
1 planta
Plantas del edificio
2
Ascensor
No
Superficie
85 m²
Habitaciones
2
Dormitorios
2
Baños
1
Balcón
Terraza
No
Calefacción
Individual, suelo radiante
Aire acondicionado
Individual
Vistas
Mar
Distancia al mar
150 m
Otras características
  • Puerta blindada
  • Piscina
Información del precio
Precio
€ 270.000
Precio del m²
3.176 €/m²
Eficiencia energética

Consumo de energia

A+

Descubre otros ángulos del inmueble
+9
Opciones adicionales

Contactar con el anunciante

O