Piso de cuatro habitaciones en varias plantas, Brezovica sjever, Zagreb

€ 264.150
4
105 m²
2

Nota

Anuncio actualizado el 29/04/2026
Descripción

referencia: 184

PRODAJA, PROJEKT BREZOVICA III - CENTAR, 8 KUĆA U NIZU, USELJENJE 2027.
Prodaje se 8 kuća u nizu, koje se sastoje od prizemlja i kata te svakoj pripadaju dva parkirna mjesta i vrt.
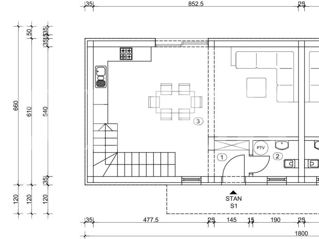
Prizemlje: ulazni prostor (2,17m2), wc (2,85m2) i dnevni boravak sa kuhinjom i blagovaonicom (40,12m2), ukupne prodajne površine 45,14 m2.
Kat: hodnik (5,31m2), spremište (2,20m2), spavaća soba (8,84m2), spavaće sobe (8,84m2), kupaonica (4,98m2), spavaća soba (14,98 m2), ukupne prodajne površine 45,15m2.
Svakoj kući pripada vrt i dva vanjska parkirna mjesta.
S1 - PRODANO
S2 - KUĆA 90 m2 + VRT 36 M2 + 2 PM = 264.150 eur
S3 - KUĆA 90 m2 + VRT 37 M2 + 2 PM = 263.475 eur
S4 - KUĆA 90 m2 + VRT 36 M2 + 2 PM = 265.000 eur
S5 - PRODANO
S6 - PRODANO
S7 - PRODANO
S8 - KUĆA 90 m2 + VRT 302 M2 + 2 PM +  poljoprivredno zemljište 1.400 m2 = 290.000 eur
LOKACIJA :
Arena centar 6 km, škola 250 m, vrtić 250 m, dom zdravlja 250 m.
OPREMA:
- Konstrukcija cigla, pregradbeni zidovi knauf- Izolacija – termo fasada stiropor- PVC stolarija rehau, troslojno staklo + rolete na struju- dizalice topline, podno grijanje- klima u dnevnom boravku- pločice prve klase u kupaonicama, parket u ostatku kuće
Za sve informacije nazovite 098/359876
ZIHER
Agencija za posredovanje u prometu nekretninama
Características
Tipología
Piso
Contrato
Venta
Planta
En varias plantas
Plantas del edificio
1
Superficie
105 m²
Habitaciones
4
Dormitorios
3
Baños
2
Calefacción
Central, por radiadores, de gas
Otras características
  • Carpintería exterior de vidrio/PVC
Información del precio
Precio
€ 264.150
Precio del m²
2.516 €/m²
Desglose de los costes
Gastos de comunidad
Ningún gasto de comunidad
Eficiencia energética
  • Año de construcción

    2025
  • Calefacción

    Central, por radiadores, de gas
  • Certificación energética

    Inclasificable
Descubre otros ángulos del inmueble
+8
Opciones adicionales

Contactar con el anunciante

O