Terreno urbanizable en Venta

€ 150.000
815 m²

Nota

Anuncio actualizado el 12/03/2026
Descripción

referencia: 163

PRODAJA, KANFANAR, BARAT, DVA PROJEKTA ZA VILU S BAZENOM, SA GRAĐEVINSKOM DOZVOLOM
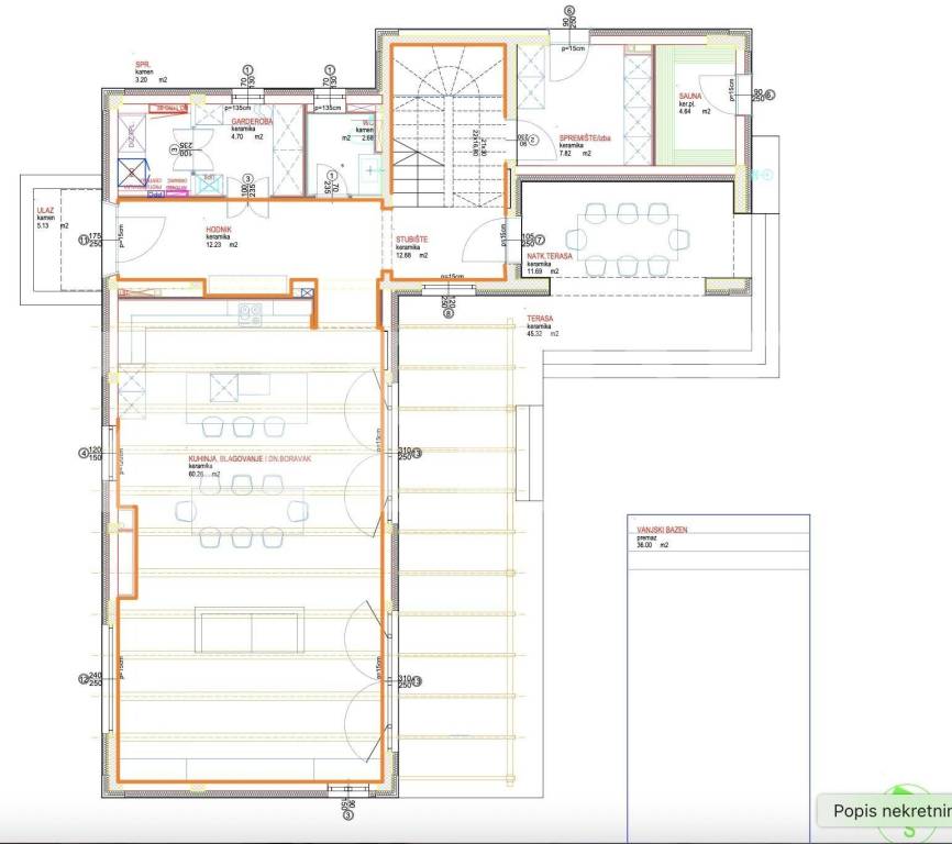
Prodaju se građevinska zemljišta s projektima i građevinskom dozvolom za gradnju vila s bazenom.
U prizemlju vile je predviđen natkriveni ulaz, ulazni hodnik, garderoba, wc, veliki dnevni boravak s kuhinjom i blagavaonicom, spremište i sauna, ukupne površine cca 106 m2.
Iz dnevnog boravka se izlazi na veliku teras od 45 m2, sa koje se ulazi na natkrivenu terasu od 12 m2, izmešu kojih je bazen od 36 m2.
Na katu su predviđene dvije spavaće sobe sa vlastitim kupaonicama, te još dvije spavaće sobe koje dijele jednu kupaonicu, i vešeraj, ukupne površine cca 106 m2.
Projekt 1. - zemljište 679 m2 s projektom i dozvolom za izgradnju vile s bazenom = 150.000 eura
Projekt 2. - zemljište 815 m2 s projektom i dozvolom za izgradnju vile s bazenom = 150.000 eura
Zemljišta su udaljena od Rovinja 25 km, od Poreča 22 km, Pula aerodrom 40 km.
Agencijska provizija iznosi 2 % + PDV.
Za sve informacije nazovite 098/359876
ZIHER
Agencija za posredovanje u prometu nekretninama
Características
Contrato
Venta
Tipología
Terreno urbanizable
Superficie
815 m²
Información del precio
Precio
€ 150.000
Precio del m²
184 €/m²
Plano
Gradjevinsko zemljiste, Prodaja, Kanfanar, Barat
Gradjevinsko zemljiste, Prodaja, Kanfanar, Barat
Descubre otros ángulos del inmueble
+8
Opciones adicionales

Contactar con el anunciante

O