Piso nuevo, segunda planta, Luka, Poreč

€ 460.000
5+
112 m²
2
2
Terraza

Nota

Anuncio actualizado el 14/03/2026
Descripción

This description has been translated automatically and may not be accurate

referencia: 2307-1

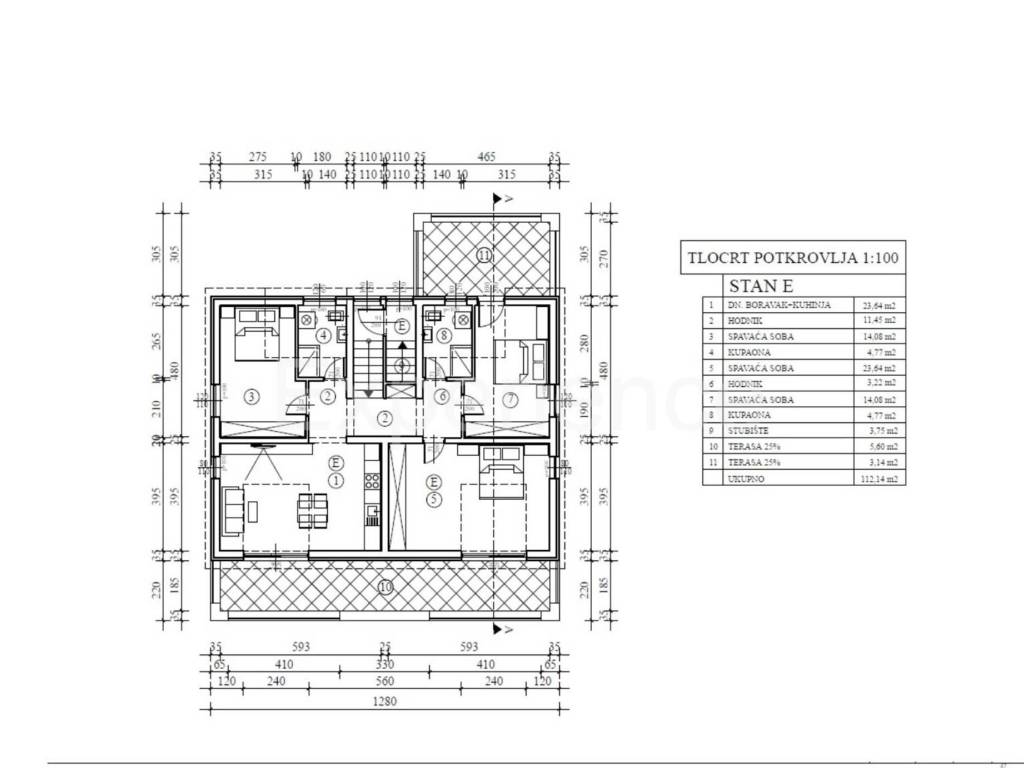
Nearby Poreč - cca. 9 km from the sea and the city, in a very quiet environment, a penthouse in a new building is for sale, with a total area of 112.14 m.. The penthouse is situated on the second and last floor of an intimate residential building with only 5 residential units. Contains: entrance hall, open and bright space in which there is a living room, kitchen and dining room with access to a spacious terrace (22,40 m), three bedrooms, two of which have access to the terrace, and two bathrooms.

The penthouse also has a storage room (8.34 m) in the basement of the building, garden (300 m) and a brick-built garden house (storage room) located in the courtyard with a total area of 38.20 m.

Heating and cooling is regulated by air conditioning, and floor heating in the bathroom.

The planned completion of construction is until June 2025.

Noting, you do not pay the real estate transfer fee in the amount of 3% of the agreed purchase price.
Si deseas más información puedes hablar con Patricija Simonetti.
Características
Tipología
Piso
Contrato
Venta
Planta
2 planta
Superficie
112 m²
Habitaciones
5+
Dormitorios
3
Baños
2
Terraza
Calefacción
Central, suelo radiante
Aire acondicionado
Centralizada, frío/calor
Otras características
  • Puerta blindada
Información del precio
Precio
€ 460.000
Precio del m²
4.107 €/m²
Eficiencia energética
  • Año de construcción

    2024
  • Estado

    Nuevo / En construcción
  • Calefacción

    Central, suelo radiante
  • Aire acondicionado

    Centralizada, frío/calor
Descubre otros ángulos del inmueble
+5
Opciones adicionales

Contactar con el anunciante

O