map icon

Casa unifamiliar 230 m², nueva, Luka, Poreč

PorečLuka
€ 1.400.000
5+
230 m²
3+
Terraza

Nota

Anuncio actualizado el 21/01/2026
Descripción

This description has been translated automatically and may not be accurate

referencia: 1803-1

In the vicinity of Poreč, in a small Istrian village on the edge of the construction area, a luxury villa is under construction. The villa is located in a very quiet environment, in a typical Istrian village with only a few houses.

The exterior of the villa, which is adorned with a facade in part in stone, a choice of earth tones, attractive and at the same time simple design are perfectly combined in the surrounding Istrian landscape. The interior of the villa includes a total of 230 m of living space. Modern design, high ceilings and glass openings create an extraordinary width with a beautiful panoramic view of the sea.

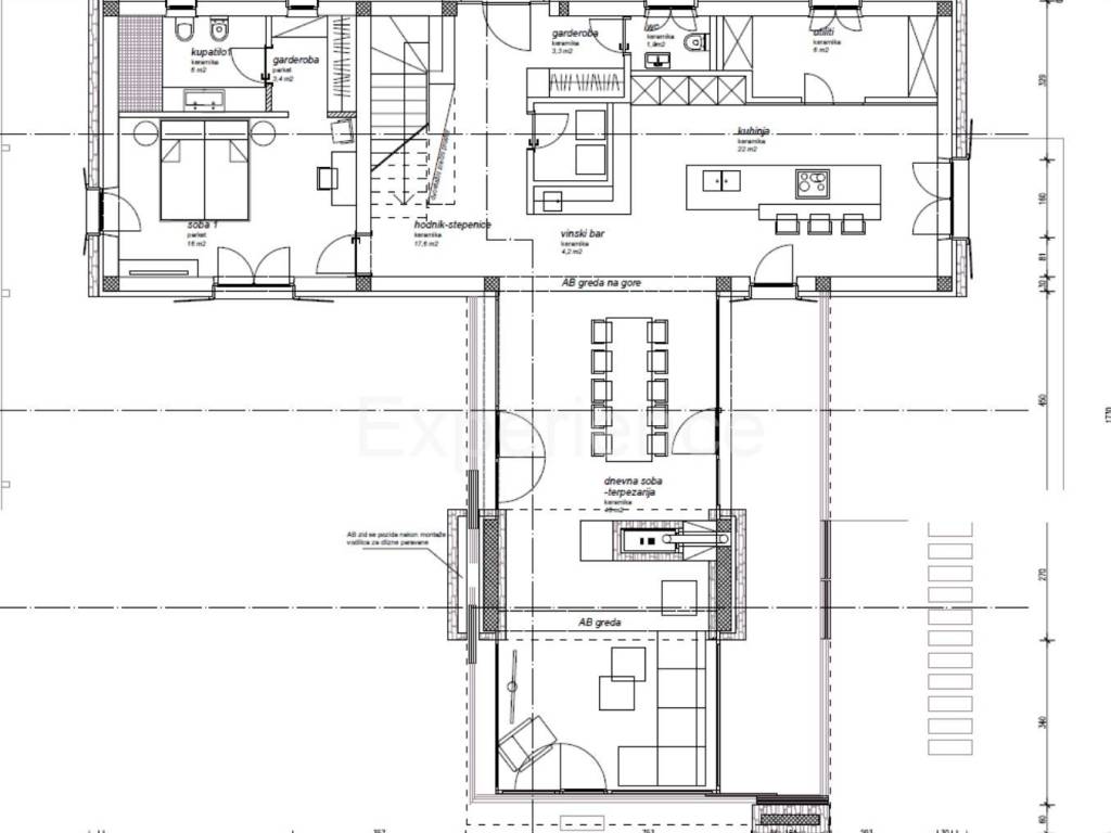
The villa consists of two floors. On the ground floor of the villa are situated an entrance hall, kitchen, dining room, living room, spacious bedroom with private wardrobe and bathroom, toilet and storage. From the entire ground floor of the villa, the glass walls from the interior offer a beautiful view of the pool, garden and panoramic sea views. While on the first floor of the villa there are three spacious bedrooms, each with its own bathroom, and a spacious terrace (78 m) with a jacuzzi.

In the landscaped garden there will be a swimming pool (50 m) with a sun deck, a summer kitchen with a covered dining area (42 m) with a toilet and a covered parking space surface of 60 m2 with a storage.

Additional features:
- heating: underfloor heating,
- cooling: air conditioners in all rooms.
Si deseas más información puedes hablar con Patricija Simonetti.
Características
Tipología
Casa unifamiliar
Contrato
Venta
Planta
1
Superficie
230 m² | comercial 1.250 m²
Habitaciones
5+
Dormitorios
4
Baños
3+
Terraza
Calefacción
Central
Detalle superficie

Vivienda

Planta
1
Superficie
230,0 m²
Coeficiente
100%
Tipo de superficie
Principal
Superficie construida
230,0 m²

Terreno

Planta
Planta baja
Superficie
1.020,0 m²
Coeficiente
100%
Tipo de superficie
Anexos
Superficie construida
1.020,0 m²
Información del precio
Precio
€ 1.400.000
Precio del m²
1.120 €/m²
Eficiencia energética
  • Año de construcción

    2022
  • Estado

    Nuevo / En construcción
  • Calefacción

    Central
  • Certificación energética

    Inclasificable
Descubre otros ángulos del inmueble
+14
Opciones adicionales

Contactar con el anunciante

O