Piso de cuatro habitaciones Glavani, Kostrena

€ 850.000
4
250 m²
1
Balcón
Terraza

Nota

Anuncio actualizado el 03/03/2026
Descripción

referencia: EUROVILLA-535186

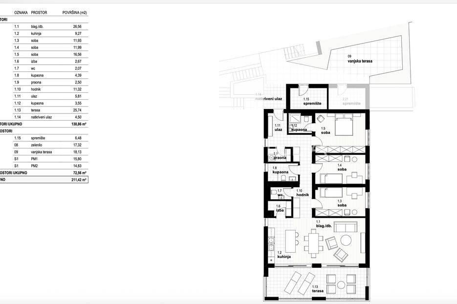
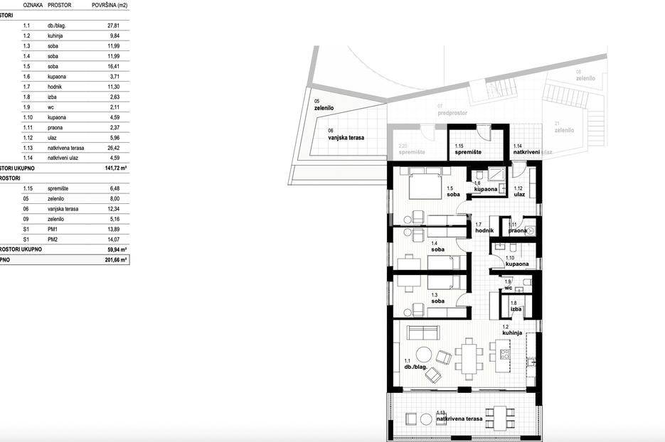
U Kostreni, jednoj od najljepših i najtraženijih lokacija na Kvarneru, prodaje se luksuzan četverosoban stan dvoetažan stan površine 250,80 m² u modernoj zgradi s ukupno dva kata. Ova elegantna novogradnja predstavlja savršen spoj sofisticiranog dizajna, udobnosti i suvremenog načina života, uz predivan pogled na more koji oduzima dah.Stan se sastoji od prostranog dnevnog boravka i blagovaonice površine 42,20 m², povezane s moderno uređenom kuhinjom od 7,73 m². Na raspolaganju su četiri prostrane spavaće sobe (21,91 m², 14,20 m², 14,20 m² i 14,20 m²), tri elegantne kupaonice, garderoba, vešeraj, spremište, izba, hodnik i ulazni prostor. Natkrivena terasa od 26,14 m² pruža dodatni prostor za uživanje na svježem zraku uz mir i prekrasan pogled na more.Dodatno, stanu pripada privatni bazen, dvije vanjske terase s vrtom, dva vanjska parkirna mjesta te zasebno spremište površine 6,48 m².Poseban naglasak stavljen je na vrhunsku kvalitetu gradnje i odabir materijala. Stan je opremljen podnim grijanjem putem dizalice topline, klima uređajima, aluminijskom stolarijom ALU BEN, protuprovalnim vratima te vrhunskom završnom obradom. Zahvaljujući smart home sustavu, omogućena je potpuna kontrola svih funkcionalnosti doma, što dodatno doprinosi udobnosti i sigurnosti stanovanja.Ova jedinstvena nekretnina pruža vrhunsku kvalitetu života uz privatni bazen i uređeni vrt, savršene za opuštanje i rekreaciju. Udaljenost od mora iznosi svega 1.118 metara, što osigurava brz i jednostavan pristup prekrasnim plažama i šetnicama. Završetak izgradnje planiran je za 2026. godinu.Stan se prodaje po principu „ključ u ruke“, bez namještaja. U cijenu je uključen PDV, a kupac je oslobođen plaćanja poreza na promet nekretnina.Ne propustite priliku postati vlasnikom ove iznimne nekretnine koja spaja luksuz, mir i blizinu mora - savršene karakteristike za moderan i kvalitetan život u Kostreni.Za više informacija i razgled stana, slobodno nas kontaktirajte.... Više na eurovilla.hr, ID: 535186
Si deseas más información puedes hablar con Ivana Žuklić Deluka.
Características
Tipología
Piso
Contrato
Venta
Planta
1
Superficie
250 m²
Habitaciones
4
Dormitorios
4
Balcón
Terraza
Detalle superficie

Vivienda

Planta
1
Superficie
250,8 m²
Coeficiente
100%
Tipo de superficie
Principal
Superficie construida
250,8 m²
Información del precio
Precio
€ 850.000
Precio del m²
3.400 €/m²
Eficiencia energética
  • Estado

    Nuevo / En construcción
  • Certificación energética

    Exento
Descubre otros ángulos del inmueble
+11
Anunciante
agent male

Ivana Žuklić Deluka

ficha de agencia
Opciones adicionales

Contactar con el anunciante

O
agent male

Ivana Žuklić Deluka