map icon

Piso segunda planta, Kaštela

Kaštela
€ 450.000
5+
181 m²
2
2

Nota

Anuncio actualizado el 05/12/2025
Descripción

This description has been translated automatically and may not be accurate

referencia: 1226-1

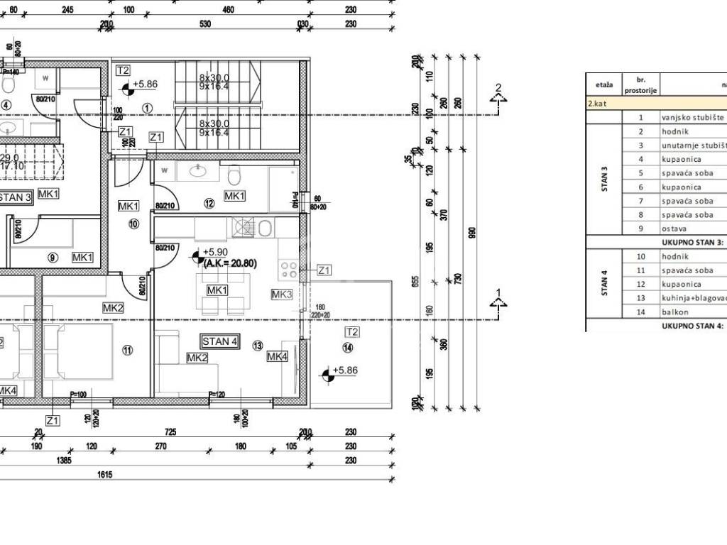
We offer for sale a two-story, three-room apartment on the second floor of a residential building under construction in Kaštel Stari.

The lower floor consists of a hallway, three bedrooms, and two bathrooms with a toilet and a storage room.

The upper floor consists of a spacious living room with kitchen and dining room with access to the terrace.

The interior area of the apartment is 99.19 m2, and the terrace is 81.32 m2.

It has two outdoor parking spaces

The facility will begin construction in October 2025, and completion and occupancy are scheduled 20 months from the start of construction.

The sale is carried out on a "turnkey" basis, which includes the installation of entrance blinds and room doors, floor coverings, sanitary ware in bathrooms, air conditioning, underfloor heating, high-quality PVC joinery, etc.

The construction is taking place in an excellent location along the old road, close to all facilities necessary for everyday life (shops, primary school, clinic, pharmacy, beach, restaurants, butcher, fish market...). It is only a 10-minute walk to the first beach.

For more information, contact an agent.
Características
Tipología
Piso
Contrato
Venta
Planta
2 planta
Superficie
181 m²
Habitaciones
5+
Dormitorios
3
Baños
2
Información del precio
Precio
€ 450.000
Precio del m²
2.486 €/m²
Eficiencia energética
  • Certificación energética

    Inclasificable
Descubre otros ángulos del inmueble
+13
Opciones adicionales

Contactar con el anunciante

O