map icon

Piso de cuatro habitaciones segunda planta, Okrug

Okrug
€ 475.000
4
76 m²
1
2

Nota

Anuncio actualizado el 05/12/2025
Descripción

This description has been translated automatically and may not be accurate

referencia: 1179-1

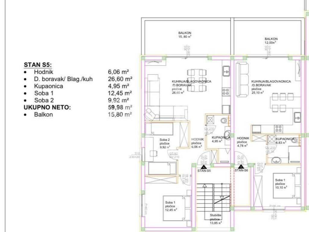
We are mediating the sale of a two-room apartment on the second floor of a new building in Okrug Gornji (label "S5").

The apartment consists of a hallway, two bedrooms, living room with dining room and kitchen, balcony, bathroom with toilet, and a roof terrace of 139m2.

The residential building is finished and the apartment is ready to move into.

The price of the apartment is EUR 470,000 with a garage of 50 m2, and without a garage the price of the apartment is EUR 400,000.

The building also has a swimming pool available for use by all tenants.

Great opportunity for permanent residence, year-round or tourist rental!

For more information, contact the agent!
Características
Tipología
Piso
Contrato
Venta
Planta
2 planta
Superficie
76 m²
Habitaciones
4
Dormitorios
2
Baños
1
Información del precio
Precio
€ 475.000
Precio del m²
6.250 €/m²
Eficiencia energética
  • Certificación energética

    Inclasificable
Descubre otros ángulos del inmueble
+8
Opciones adicionales

Contactar con el anunciante

O