map icon

Piso de cuatro habitaciones nuevo, segunda planta, Okrug

Okrug
€ 350.000
4
62 m²
1
2

Nota

Anuncio actualizado el 05/12/2025
Descripción

This description has been translated automatically and may not be accurate

referencia: 1177-1

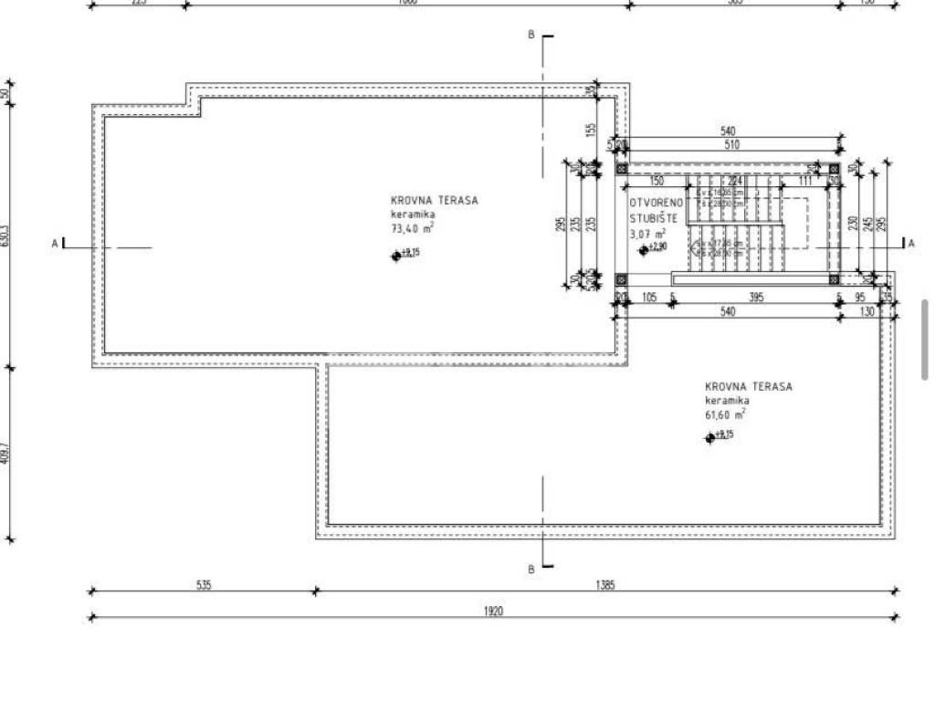
We offer for sale a two-room penthouse apartment on the second floor of a residential building under construction in Okrug Gornji. (The apartment is labeled "S6" in the documentation)

The apartment consists of a hallway, two bedrooms, storage room, bathroom with toilet, living room with kitchen and dining room, and a spacious balcony.

It has one outdoor parking space, a walkable roof terrace and the right to use the communal pool.

The interior area of the apartment is 51.94 m2, the balcony is 9.80 m2, and the roof terrace is 61 m2.

The residential building is under construction, and completion and occupancy are scheduled for the summer of 2025.

Great opportunity for permanent residence, year-round or tourist rental.

For more information, contact an agent.
Características
Tipología
Piso
Contrato
Venta
Planta
2 planta
Superficie
62 m²
Habitaciones
4
Dormitorios
2
Baños
1
Información del precio
Precio
€ 350.000
Precio del m²
5.645 €/m²
Eficiencia energética
  • Estado

    Nuevo / En construcción
  • Certificación energética

    Inclasificable
Descubre otros ángulos del inmueble
+5
Opciones adicionales

Contactar con el anunciante

O