map icon

Piso de dos habitaciones nuevo, planta baja, Vodice

Vodice
€ 284.164
2
75 m²
2
B

Nota

Anuncio actualizado el 28/01/2026
Descripción

This description has been translated automatically and may not be accurate

referencia: 3367-1

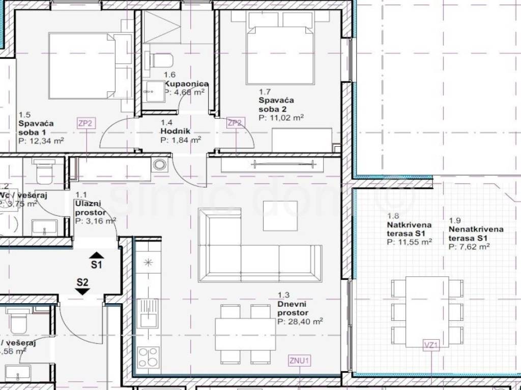
We are mediating the sale of apartments in a new building, in a quiet street, 650m from the center of Vodice and 800m from a beautiful pebble beach. Apartment S1 is placed on the ground floor of the building and has a net usable area of 74.78 m2. It consists of a hallway, bathroom with laundry room, additional bathroom, two bedrooms, open-concept kitchen with living room that has access to a spacious terrace of over 19 m2 of floor area. All apartments also have a storage room in the building and an outdoor parking space. For an additional fee of 7,500, it is possible to purchase a second parking space. The project is being built by investors with many years of experience, and the apartments will be equipped according to the latest construction standards with high-quality materials, including aluminium windows, electric shutters, natural stone floors, modern bathroom equipment, air conditioning in bedrooms and living rooms, and underfloor heating. Buyers are exempt from real estate transfer tax. Expected move-in is in January 2026.

Viewing this property is possible only with the signing of our standard agency agreement, which is the basis for further actions related to the sale of real estate, all in accordance with the Law on Data Protection and the Real Estate Brokerage Act.
Características
Tipología
Piso
Contrato
Venta
Planta
Planta baja
Superficie
75 m²
Habitaciones
2
Baños
2
Aire acondicionado
Centralizada, frío/calor
Información del precio
Precio
€ 284.164
Precio del m²
3.789 €/m²
Eficiencia energética
  • Estado

    Nuevo / En construcción
  • Aire acondicionado

    Centralizada, frío/calor
  • Certificación energética

    Inclasificable
Descubre otros ángulos del inmueble
+5
Opciones adicionales

Contactar con el anunciante

O