map icon

Piso de dos habitaciones nuevo, planta baja, Okrug

Okrug
€ 440.000
2
89 m²
2
B

Nota

Anuncio actualizado el 28/01/2026
Descripción

This description has been translated automatically and may not be accurate

referencia: 3339-1

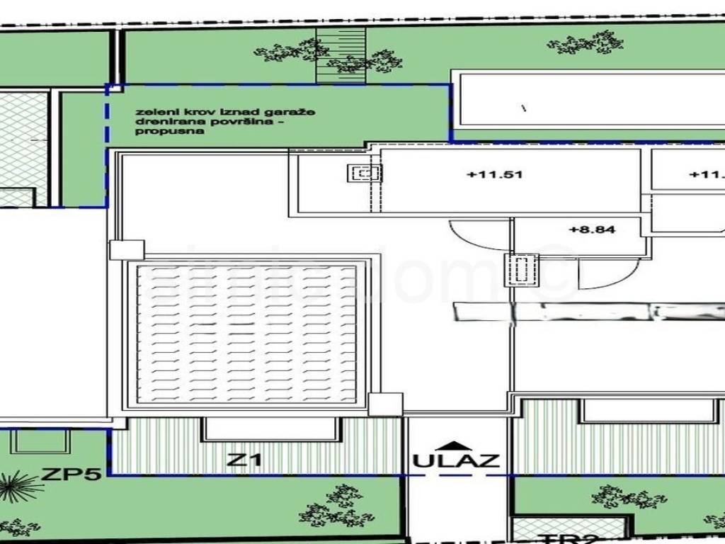
An apartment in a new building of extremely high quality and equipment, for sale in an excellent location only 160m from the beach. Apartment S1 is placed on the ground floor and has a southwest orientation. The apartment has a total net area of 89 m2 and consists of a hallway, two bathrooms, two bedrooms, an open-concept kitchen with a dining room and living room, and a garden with its own pool. The apartment also includes a garage space included in the price. The apartments are equipped with high-quality carpentry and ceramics and are ready for occupancy in the summer of 2025. The location of the building is great for tenants who want to rent, but also for those who want to enjoy their own property, the view and the proximity to the beach.

Viewing this property is possible only with the signing of our standard agency agreement, which is the basis for further actions related to the sale of real estate, all in accordance with the Law on Data Protection and the Real Estate Brokerage Act.
Características
Tipología
Piso
Contrato
Venta
Planta
Planta baja
Superficie
89 m²
Habitaciones
2
Baños
2
Información del precio
Precio
€ 440.000
Precio del m²
4.944 €/m²
Eficiencia energética
  • Estado

    Nuevo / En construcción
  • Certificación energética

    Inclasificable
Descubre otros ángulos del inmueble
+9
Opciones adicionales

Contactar con el anunciante

O