map icon

Piso de tres habitaciones nuevo, primera planta, Vodice

Vodice
€ 450.000
3
139 m²
2
1
Terraza

Nota

Anuncio actualizado el 28/01/2026
Descripción

This description has been translated automatically and may not be accurate

referencia: 3013-1

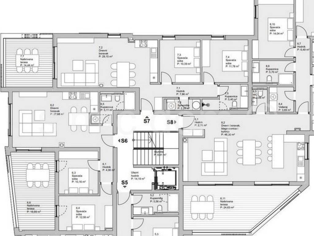
For sale is a great new apartment, at just 380m from a beautiful pebble beach in Vodice. Apartment marked S8 is placed on the first floor of a smaller building and has a southeast orientation. The apartment has a total floor area of 138.83m2, of which 114m2 is internal space. The apartment consists of three bedrooms, two bathrooms, a toilet, a laundry room, a hallway and a spacious kitchen with a dining room and an open-concept living room that leads to a large terrace. The apartment also includes a garage parking space of 18m2 and a storage room of 8m2, all included in the price. The project includes equipment according to the high standards of the investor: air conditioners in the bedrooms and the living room, Styrofoam facade, modern bathroom sanitary ware, PVC carpentry, blinds with electric lifters, mosquito nets, burglar-proof and fire-proof entrance doors, underfloor heating, Italian ceramic floor coverings, TV/internet connection in bedrooms and living room. Thanks to its location close to all amenities, this property is an excellent investment both for rent and as your own vacation property.

Viewing this property is possible only with the signing of our standard agency agreement, which is the basis for further actions related to the sale of real estate, all in accordance with the Law on Data Protection and the Real Estate Brokerage Act.
Características
Tipología
Piso
Contrato
Venta
Planta
1 planta
Ascensor
Superficie
139 m²
Habitaciones
3
Baños
2
Terraza
Aire acondicionado
Centralizada, frío/calor
Otras características
  • Puerta blindada
Información del precio
Precio
€ 450.000
Precio del m²
3.237 €/m²
Eficiencia energética
  • Estado

    Nuevo / En construcción
  • Aire acondicionado

    Centralizada, frío/calor
  • Certificación energética

    Inclasificable
Descubre otros ángulos del inmueble
+3
Opciones adicionales

Contactar con el anunciante

O