map icon

Tienda - Local comercial en Alquiler

Sinj
€ 2.000/mes
2
120 m²

Nota

Anuncio actualizado el 23/12/2025
Descripción

referencia: 4382-1

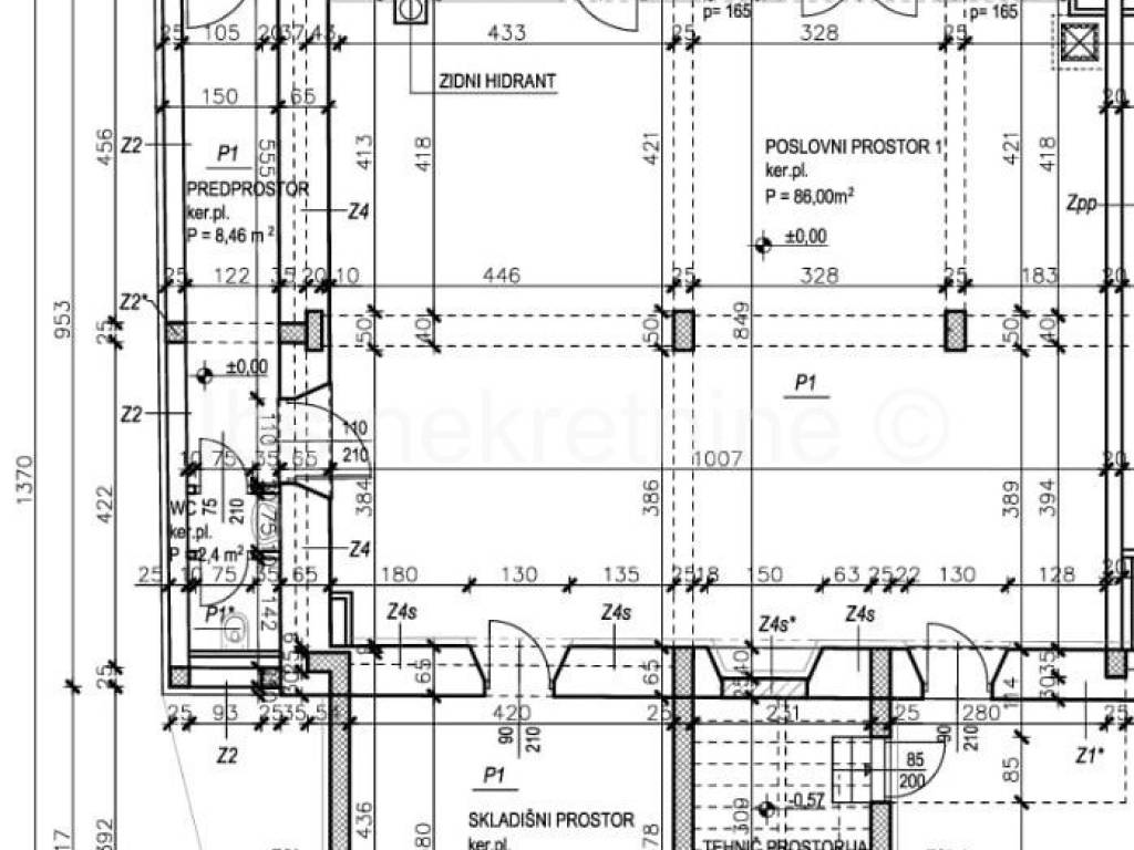
Iznajmjuje se poslovni prostor u centru Sinja u Glavičkoj ulici.
Novouređen sa tri zasebna ulaza uz glavnu prometnicu sa veikom frekvencijom.
Velika prostorija, skladište i sanitarni čvor.
Pogodan je za razne namjene od izložbeno prodajnog prostora, ureda ili tihog obrta.
Aencijska provizija iznosi jednu mjesenu najamninu!!
Características
Contrato
Alquiler
Superficie
120 m²
Habitaciones
2 habitaciones
Información del precio
Precio
€ 2.000/mes
Precio del m²
17 €/m²
Desglose de los costes
Fianza
No indicada
Eficiencia energética
  • Estado

    Bueno / Habitable
  • Certificación energética

    Inclasificable
Descubre otros ángulos del inmueble
+5
Opciones adicionales

Contactar con el anunciante

O