Piso nuevo, tercera planta, Seget

€ 340.000
5+
129 m²
3
3

Nota

Anuncio actualizado el 30/04/2026
Descripción

This description has been translated automatically and may not be accurate

referencia: 5781-1

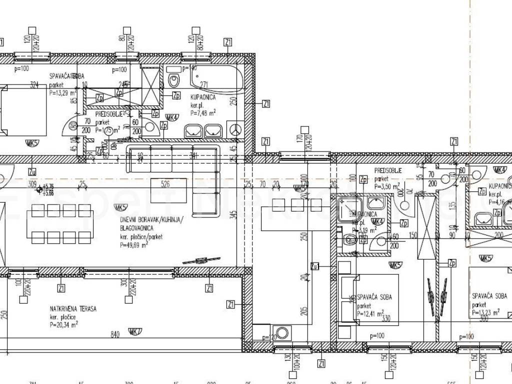
Seget Vranjica, comfortable three-room apartment 129 m2 (109 m2 + 20 m2 loggia) on the second (last) floor of a new building with a panoramic view of the sea and islands. The orientation of the apartment is north-south-east. The apartment has three bedrooms each with a bathroom, kitchen, a dining room and a large living room and a large loggia (20m2) with a panoramic view of the sea and the islands, from which the apartment is approx. 350m away. The apartment has one outdoor parking space.
The building is in the phase of rough construction works, and the planned completion of the building is at the end of 2025. Quality construction (pvc carpentry, air conditioning, underfloor heating, electric blinds, ceramics according to the customer's choice, as well as sanitary facilities, etc.). Payment by construction stages. .Quiet location.
For more information, contact the agency.
Características
Tipología
Piso
Contrato
Venta
Planta
3 planta
Superficie
129 m²
Habitaciones
5+
Dormitorios
3
Baños
3
Aire acondicionado
Centralizada, frío/calor
Otras características
  • Puerta blindada
  • Instalación tv con antena parabólica
Información del precio
Precio
€ 340.000
Precio del m²
2.636 €/m²
Eficiencia energética
  • Año de construcción

    2025
  • Estado

    Nuevo / En construcción
  • Aire acondicionado

    Centralizada, frío/calor
  • Certificación energética

    Inclasificable
Descubre otros ángulos del inmueble
+22
Opciones adicionales

Contactar con el anunciante

O