map icon

Piso quinta planta, Kanal - Sigečica, Zagreb

ZagrebKanal - Sigečica
€ 2.900.000
5
491 m²
2
5
Amueblado

Nota

Anuncio actualizado el 02/05/2026
Descripción

This description has been translated automatically and may not be accurate

referencia: 13-1

Luxurious furnished apartment in an attractive location in the western part of the city in the Trnje district, close to the business zone, the center and all amenities. The apartment is sold furnished as shown in the pictures
The apartment is located on the 5th floor of a residential building, and consists of a living room and a dining room, a kitchen, two spacious bedrooms, two bathrooms and a separate toilet with a laundry room. From the master bedroom, you enter the luxurious bathroom, which includes a sauna, hydromassage tub and shower cabin. This room is complemented by a spacious wardrobe. The second bedroom has its own bathroom with shower and access to the terrace that surrounds the apartment. The kitchen and living room also have access to a terrace of 213.20 m.
The apartment is characterized by an extremely elegant style and a beautiful view of the city of Zagreb. The glass windows extend from floor to ceiling and provide a feeling that can be described as a real life among the clouds. The color palette in this apartment is quite simple, with many white elements in the open-plan rooms, in which the quality brown wooden wall panels and stone slabs perfectly blend in, making the atmosphere natural, pleasant and interesting. By using different materials and textures, a visual division of the apartment was created between the living room and the bedroom, and the same type of floor was used as a link so that the nuanced colors would complement each other. The dynamism of the living area is achieved by a combination of smooth wooden wall panels with a visible wood structure, bright wall surfaces and ambient ceiling lighting with flat and oval lines in multiple levels. The darker brown colors of the matte surfaces of individual details in combination with dark glass walls, light panels and wall ambient lighting make the atmosphere of the rooms calmer and more natural, but also ensure that the monochromatic look does not seem boring, but pleasant and interesting.

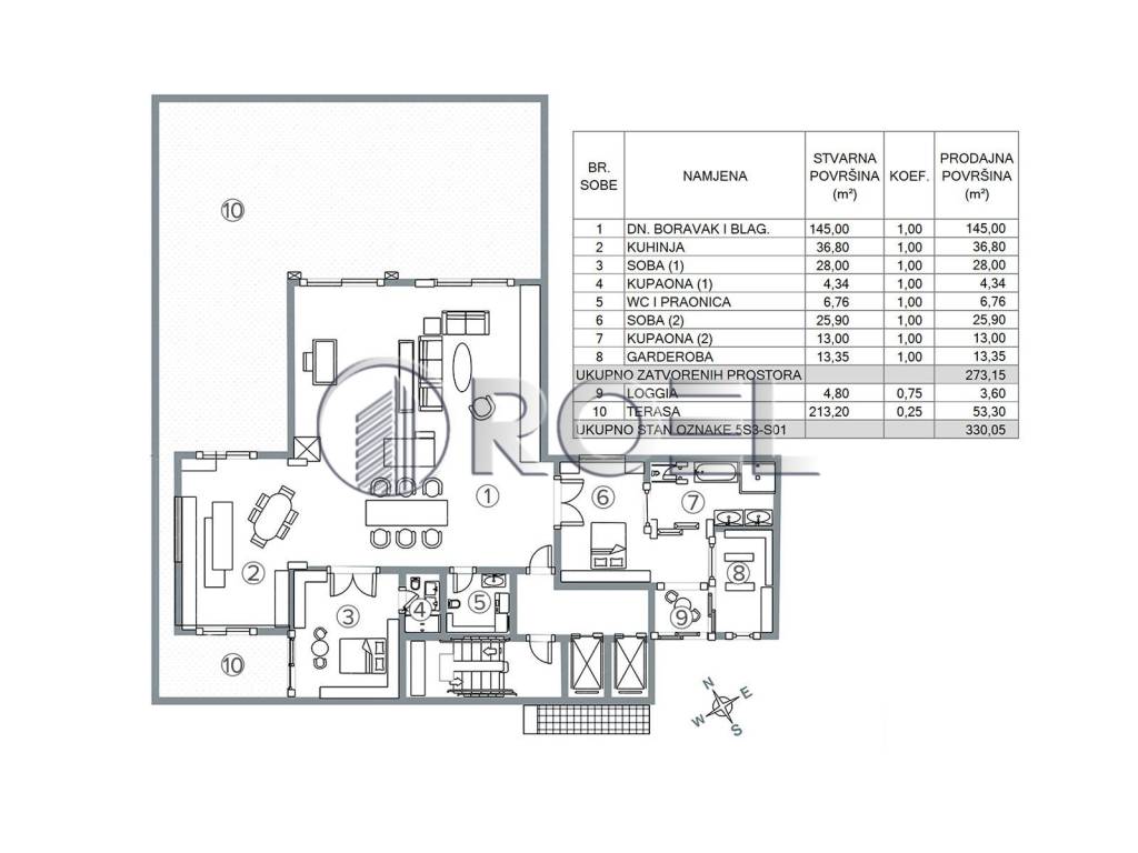
Area and arrangement of rooms

1) Living room and dining room 145.00 m2) Kitchen 36.80 m3) Room (1) 28.00 m4) Bathroom (1) 4.34 m5) Toilet and laundry room 6.76 m6) Room (2) 25.90 m7) Bathroom 13.00 m8) Wardrobe 13.35 m9) Loggia 4.80 m10) Terrace 213.20 m

Apartment equipment

The building as well as the apartment is made and equipped with high-quality materials and equipment. The equipment includes first-class stone slabs with a thickness of 3 cm. The sanitary ware is of the Laufen brand, with Hansgrohe Axor mixers. The exterior joinery is aluminum with double iso glazing, an anti-burglary entrance door and an alarm system are installed. The building as well as the apartment are connected to the hot water network of the city heating plant, and the heating is central under the floor, including part of the terrace. The KNX control system is installed heating, cooling, lighting, raising and lowering blinds and the SONOS multi room system. Video surveillance is installed inside and outside the building. The building is suitable for people with disabilities and has two elevators, and the apartment has 3 parking spaces in the basement garage on floor -2. The elevators lead directly from the garage to the apartment.

Terms of purchase

Apartment 5S3-S01 has a total area of 491.15 m. It consists of a closed living area of 273.15 m, with a loggia of 4.80 m and a terrace of 213.20 m.
The living area of the apartment, including construction coefficients, is 330.05 m.
The apartment also has 3 parking spaces in the garage and the purchase of parking spaces is mandatory.
The surfaces of the parking garage spaces are 18.48 m, 17.50 m and 19.04 m. Therefore, this property has a total area of 546.17 m, and with construction coefficients included, the sales area is 357.56 m.

Location

The apartment is located in an attractive residential and commercial building located in Zagreb in Radnička cesta. This part of Zagreb is considered the business center of the metropolis for the reason that some of the strongest companies have their headquarters right there. In addition to own parking spaces, there is a public garage and parking lot near the apartment. It is close to public transport, the bus and the main railway station, as well as direct access to Zagrebs main thoroughfares, Vukovarska and Zagrebačka avenues.
Si deseas más información puedes hablar con Maja Nikolić.
Características
Tipología
Piso
Contrato
Venta
Planta
5 planta
Ascensor
Superficie
491 m²
Habitaciones
5
Dormitorios
2
Baños
2
Amueblado
Aire acondicionado
Centralizada, frío/calor
Otras características
  • Sistema de alarma
Información del precio
Precio
€ 2.900.000
Precio del m²
5.906 €/m²
Eficiencia energética
  • Año de construcción

    2010
  • Aire acondicionado

    Centralizada, frío/calor
  • Certificación energética

    Inclasificable
Descubre otros ángulos del inmueble
+24
Opciones adicionales

Contactar con el anunciante

O