Piso de dos habitaciones Varaždinska, Sesvete sjever, Zagreb

Precio a consultar
2
75 m²
B
Balcón

Nota

Anuncio actualizado el 16/04/2026
Descripción

referencia: EUROVILLA-547333

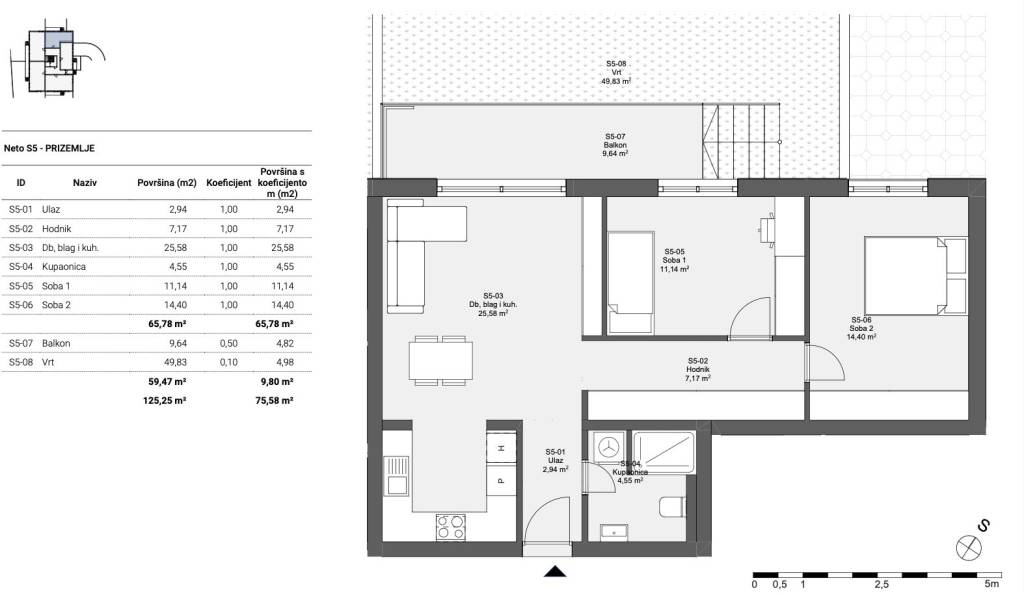
Zagreb, Sesvete, Popovec, prodaje se trosoban stan s vrtom, zatvorene površine 66 m2. Dio je vrhunskog projekta s 19 stanova na četiri etaže u zgradi s liftom te garažnim mjestima u podzemoj etaži, na vrlo dobroj i prometno povezanoj lokaciji.Projekt Popovec odlikuje odlična projektiranost po pitanju tlocrta i iskoristivosti prostora uz iznimno funkcionalna spremišta na istim etažama gdje su stanovi. Gradnja je armiranobetonska s minimalno 15 cm termoizolacije, a od opreme se ističe podno grijanje, vrhunska stolarija, keramika i parketi prve klase, klimatizacija u svakoj sobi i sl. Stanovi imaju velike terase i otvore koji im donose dovoljno svjetla te ostavljaju dodatni dojam prostranosti.Stan S5 se nalazi u visokom prizemlju te se sastoji od dnevnog prostora s kuhinjom i blagovaonicom, dvije spavaće sobe, kupaonice, ulaznog dijela, hodnika, natkrivene terase i prostranog vrta.Uz stan je obavezna kupnja spremišta (3,18 m2) po cijeni od 4.500 € te garažnog (18.000-21.000 €) ili vanjskog parkirnog mjesta (7.000 €).Lokacija je vrlo dobra, u brzorastućem naselju sa svega 5 minuta vožnje do središta Sesveta i manje od tri minute vožnje do autoceste. Također, budući produžetak Branimirove ulice će uvelike ubrzati dolazak u centralni dio Zagreba. Škola i vrtić su udaljeni manje od 300 metara što je dobar preduvjet za obiteljski život.Za ostala pitanja stojimo Vam na raspolaganju.... Više na eurovilla.hr, ID: 547333
Si deseas más información puedes hablar con Antoni Širić.
Características
Tipología
Piso
Contrato
Venta
Planta
Planta baja
Superficie
75 m²
Habitaciones
2
Dormitorios
2
Balcón
Detalle superficie

Vivienda

Planta
Planta baja
Superficie
75,6 m²
Coeficiente
100%
Tipo de superficie
Principal
Superficie construida
75,6 m²
Información del precio
Precio
Precio a consultar
Eficiencia energética
  • Estado

    Nuevo / En construcción
  • Certificación energética

    Exento
Plano
Descubre otros ángulos del inmueble
+3
Opciones adicionales

Contactar con el anunciante