map icon

Piso nuevo, semi-sótano, Kostrena

Kostrena
€ 870.000
5
210 m²
3
1
Balcón
Terraza

Nota

Anuncio actualizado el 17/11/2025
Descripción

This description has been translated automatically and may not be accurate

referencia: 6769

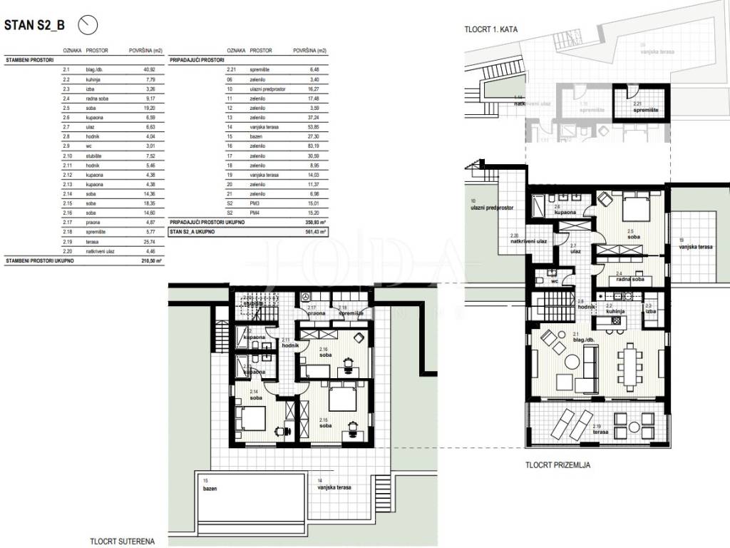
We are selling a luxurious two-storey apartment with a total area of 210 m in a green and quiet part of Kostrena. The apartment is located in a new building with a beautiful sea view and includes a private pool, terraces, a landscaped garden and top-notch technical equipment.

The apartment consists of:
- living room and dining room with kitchen
- three bedrooms, wardrobe, cellar, pantry
- two bathrooms, two additional toilets, hallway and terrace

The apartment includes the following associated spaces:
- private pool
- two terraces and a landscaped garden
- two outdoor parking spaces
- storage room (8 m)

The property is equipped with:
- underfloor heating via heat pump
- air conditioning
- aluminum joinery
- security doors and top-quality finishing materials

It is sold on a turnkey basis, without furniture. The seller is VAT registered.

ID CODE: 6769

Stjepan Vrsalović, mag.oec.
Agent s licencom
Mob: 0914848887
Tel: 051403771
E-mail: stjepan@joda-nekretnine.hr
www.joda-nekretnine.hr
Si deseas más información puedes hablar con Stjepan Vrsalović, mag.oec..
Características
Tipología
Piso
Contrato
Venta
Planta
1
Ascensor
Superficie
210 m² | comercial 561 m²
Habitaciones
5
Dormitorios
4
Baños
3
Balcón
Terraza
Aire acondicionado
Individual, frío/calor
Detalle superficie

Vivienda

Planta
1
Superficie
210,0 m²
Coeficiente
100%
Tipo de superficie
Principal
Superficie construida
210,0 m²

Terreno

Planta
Planta baja
Superficie
351,0 m²
Coeficiente
100%
Tipo de superficie
Anexos
Superficie construida
351,0 m²
Información del precio
Precio
€ 870.000
Precio del m²
1.551 €/m²
Eficiencia energética
  • Año de construcción

    2026
  • Estado

    Nuevo / En construcción
  • Aire acondicionado

    Individual, frío/calor
  • Certificación energética

    Exento
Descubre otros ángulos del inmueble
+7
Anunciante
agent male

Stjepan Vrsalović, mag.oec.

ficha de agencia
Opciones adicionales

Contactar con el anunciante

O
agent male

Stjepan Vrsalović, mag.oec.