Piso de tres habitaciones nuevo, planta baja, Centar, Opatija

€ 880.000
3
125 m²
2
1
Terraza
Amueblado

Nota

Anuncio actualizado el 30/04/2026
Descripción

This description has been translated automatically and may not be accurate

referencia: 14954

OPATIJA, LUXURIOUS APARTMENT WITH A SEA VIEW, IN A NEW RESIDENTIAL COMPLEX WITH POOL!

For sale is a luxurious apartment, 2 bedrooms + living room, in a new residential complex with a shared pool, an elevator and an underground garage located in a quiet location near the sea and the center of Opatija!

This premium property offers you modern design, luxurious elegance, privacy and comfort, and a spectacular view of the sea, and with its modern architectural style and the finest materials, it sets new standards of luxury. Thanks to its location in a quiet part of Opatija, you will enjoy a sense of privacy and peace and at the same time a stunning view of the center of Opatija and charming coast of the Adriatic Sea.

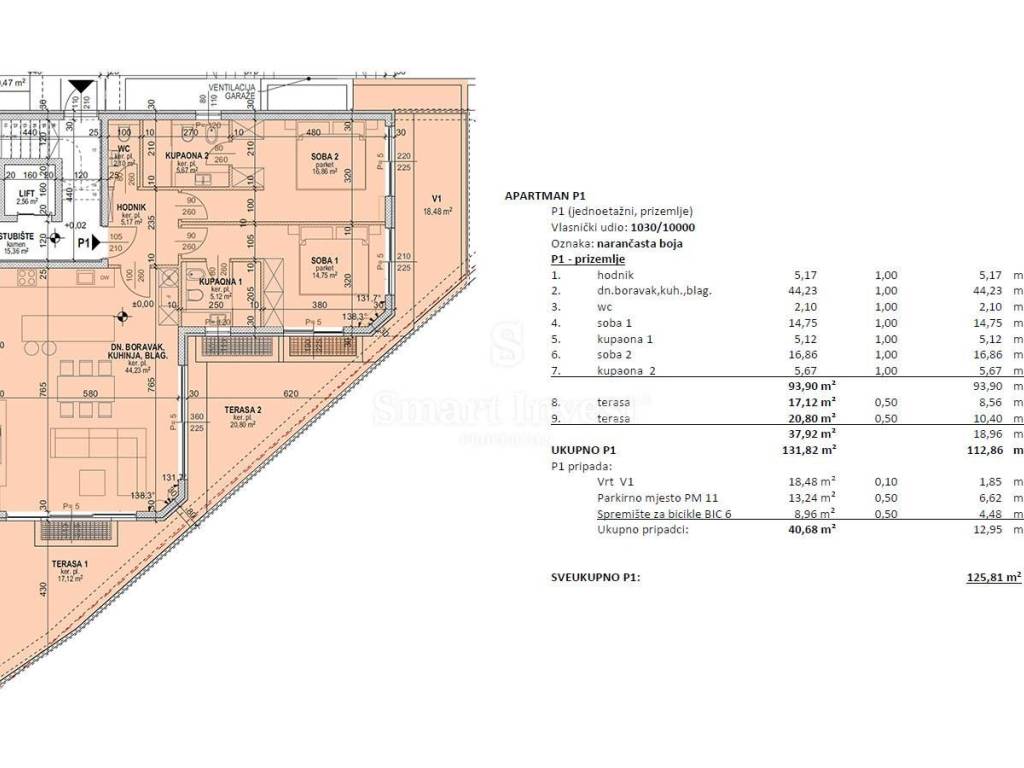
APARTMENT P1
2 bedrooms, 2 bathrooms, 1 toilet
total area of the apartment expressed with coefficients: 125,81 m2
total gross area of the apartment: 131.82 m2
internal area of the apartment: 93.90 m2
terrace: 37.92 m2
1 garage parking space PM11 of 13.24 m2
separate storage room BIC6 of 8.96 m2
garden V1: 18.48 m2

This beautiful apartment is designed for maximum comfort and luxury. At your disposal are a corridor, toilet, two bedrooms with en-suite bathrooms, spacious living room with kitchen and dining area, spacious terrace and garden - an ideal place to spend time with family and friends.

In addition, the apartment has 1 garage parking space and a separate storage room, which gives you additional convenience.

EQUIPMENT
fan coil system for energy-efficient heating and cooling
premium aluminum joinery
electrically operated aluminum blinds
premium sanitary ware
anti-burglary entrance door
elevator

This premium property offers you an incredible luxury living space with high-quality equipment and a spectacular view of the sea, and is situated in the immediate vicinity of the sea and beaches and all the necessary facilities, which makes your everyday life extremely practical and comfortable.

Opatija, the pearl of the Adriatic, is one of the most sought-after and desirable places for living and vacationing in Croatia. Its irresistible combination of natural beauty, rich history and architecture, and modern amenities make it a truly extraordinary and enchanting destination.

PRICE
The stated price refers to a completely finished apartment on a turnkey basis, without furniture. VAT is included in the price, the buyer doesn't pay the real estate sales tax. In the case of a purchase on a company registered in Croatia, a full VAT refund is possible after the purchase.

For more information and a viewing appointment, call: +385/99/320-0008

ID CODE: 14954

Agencija Opatija
Ovlašteni posrednik
Mob: +385/99/320-0008
E-mail: office@smart-invest.hr
www.smart-invest.hr
Si deseas más información puedes hablar con Agencija Opatija.
Características
Tipología
Piso
Contrato
Venta
Planta
1
Ascensor
Superficie
125 m² | comercial 143 m²
Habitaciones
3
Dormitorios
2
Baños
2
Amueblado
Balcón
No
Terraza
Garaje, plazas de aparcamiento
1 en garaje privado
Aire acondicionado
Individual, frío/calor
Otras características
  • Puerta blindada
Detalle superficie

Vivienda

Planta
1
Superficie
125,0 m²
Coeficiente
100%
Tipo de superficie
Principal
Superficie construida
125,0 m²

Terreno

Planta
Planta baja
Superficie
18,0 m²
Coeficiente
100%
Tipo de superficie
Anexos
Superficie construida
18,0 m²
Información del precio
Precio
€ 880.000
Precio del m²
6.154 €/m²
Eficiencia energética
  • Año de construcción

    2024
  • Estado

    Nuevo / En construcción
  • Aire acondicionado

    Individual, frío/calor
  • Certificación energética

    Exento
Descubre otros ángulos del inmueble
+23
Opciones adicionales

Contactar con el anunciante

O