map icon

Piso de tres habitaciones nuevo, primera planta, Sušak, Rijeka

RijekaSušak
€ 580.000
3
75 m²
1
1
Terraza
Amueblado

Nota

Anuncio actualizado el 17/11/2025
Descripción

This description has been translated automatically and may not be accurate

referencia: 13848

RIJEKA PEČINE, NEW SEAFRONT RESIDENTIAL BUILDING WITH DIRECT ACCESS TO A BEACH!

For sale is a luxury seafront apartment, 2 bedrooms + living room, with a spacious terrace, a panoramic view of the sea and a garage parking space.

The new residential complex of top quality is situated on a unique location - first line to the sea, with direct access to a beach, and at the same time close to the center of Rijeka and all amenities. It consists of 7 luxury apartments and an underground garage connected to the residential area by an elevator. All apartments are oriented towards the sea, with lots of sunlight and a beautiful panoramic view of the Kvarner Bay.

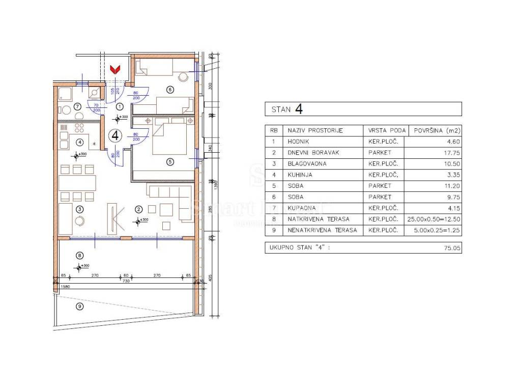
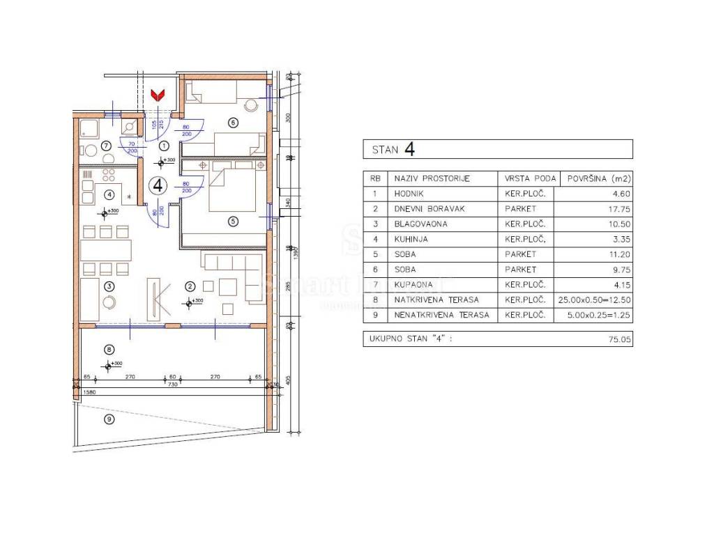
APARTMENT S4 - 2 bedrooms + living room, with a total net area of 75.05 m2 - situated on the 1st floor on the south side (from the side of the entrance - 2 floors). Consists of a corridor, living room with kitchen and dining area, 2 bedrooms, bathroom (total internal area 61.3 m2) and a covered terrace of 25 m2 and an uncovered terrace of 5 m2.

The apartment also has 1 parking space in the garage.

The apartment will be equipped with a SMART HOME remote control system, underfloor heating on a heat pump, an anti-burglary entrance door etc.

A rare and sought-after location, first line to the sea and only a 10-minute walk to the city center!

PRICE
The stated price refers to a completely finished apartment on a turnkey basis, without furniture. The price includes 25% VAT, the buyer doesnt pay the real estate transfer tax. In case of buying on a legal entity registered in Croatia it is possible to refund full VAT after the purchase.

For more information and a viewing appointment call: +385/99/320-0008

ID CODE: 13848

Agencija Opatija
Ovlašteni posrednik
Mob: +385/99/320-0008
E-mail: office@smart-invest.hr
www.smart-invest.hr
Si deseas más información puedes hablar con Agencija Opatija.
Características
Tipología
Piso
Contrato
Venta
Planta
1 planta
Ascensor
Superficie
75 m²
Habitaciones
3
Dormitorios
2
Baños
1
Amueblado
Balcón
No
Terraza
Garaje, plazas de aparcamiento
1 en garaje privado
Aire acondicionado
Individual, frío/calor
Otras características
  • Puerta blindada
Información del precio
Precio
€ 580.000
Precio del m²
7.733 €/m²
Eficiencia energética
  • Año de construcción

    2023
  • Estado

    Nuevo / En construcción
  • Aire acondicionado

    Individual, frío/calor
  • Certificación energética

    Exento
Descubre otros ángulos del inmueble
+10
Opciones adicionales

Contactar con el anunciante

O