Piso de cuatro habitaciones nuevo, planta baja, Lovran

€ 850.000
4
140 m²
1
B
Balcón
Terraza

Nota

Anuncio actualizado el 14/03/2026
Descripción

This description has been translated automatically and may not be accurate

referencia: 42593

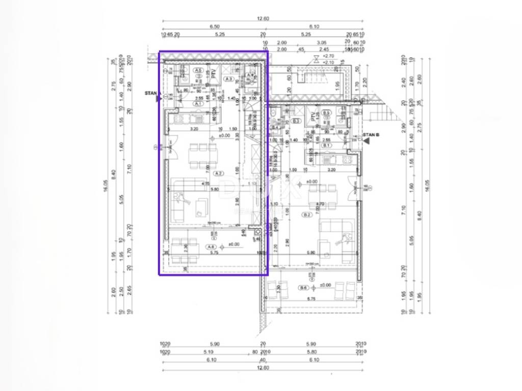
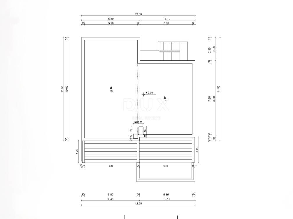
OPATIJA, LOVRAN luxury residence with private pool and panoramic sea view

In the exclusive sale of Dux, we highlight a unique opportunity for a new building in Lovran, near Opatija. It is an apartment located in a quiet street above Lovran beach with panoramic sea view. The apartment is located within a gated complex with a boutique lifestyle, - luxury, panoramic sea view, pool, sun, quality construction. There are two duplex apartments in one house. Each unit has its own private entrance and guarantees a sophisticated way of living. Apartment S1 consists of a living room on the ground floor that communicates with the kitchen and dining room, toilet, wardrobe and laundry room. On the 1st floor there are 3 bedrooms, bathrooms and an additional toilet. The terrace offers a beautiful view of the sea. We highlight high ceilings, large glass walls from which a truly magnificent panoramic view of the sea is offered, underfloor heating with a heat pump, first-class ceramics, parquet floors and sanitary facilities, aluminum joinery, heated pool, garden with rich horticulture, irrigation. The microlocation is fantastic, the drive to the center of Lovran or the first beach takes 5 minutes on the local road while the buildings are located below the aforementioned road in a street without traffic, which guarantees silence. The drive to Opatija center is 12 minutes by car. This is an ideal opportunity for investment or living in the Opatija Riviera, suitable for personal residence or luxury tourist rental. To arrange a visit to the property, call the agent with confidence - consultation in German is possible.

Dear clients, the agency commission is charged in accordance with the General Terms and Conditions: www.dux-nekretnine.hr/opci-uvjeti-poslovanja

ID CODE: 42593

Marko Šutanovac
Agent s licencom
Mob: +385 91 189 8332
Tel: +385 91 480 8808
E-mail: marko@dux-nekretnine.hr
www.dux-opatija.com
Si deseas más información puedes hablar con Marko Šutanovac.
Características
Tipología
Piso
Contrato
Venta
Planta
Planta baja
Ascensor
Superficie
140 m²
Habitaciones
4
Dormitorios
3
Baños
1
Balcón
Terraza
Aire acondicionado
Individual, frío/calor
Información del precio
Precio
€ 850.000
Precio del m²
6.071 €/m²
Eficiencia energética
  • Estado

    Nuevo / En construcción
  • Aire acondicionado

    Individual, frío/calor
  • Certificación energética

    Exento
Descubre otros ángulos del inmueble
+13
Opciones adicionales

Contactar con el anunciante

O