map icon

Piso de cuatro habitaciones nuevo, planta baja, Centar, Opatija

Opatija
€ 1
4
161 m²
2
B
Balcón
Terraza

Nota

Anuncio actualizado el 17/11/2025
Descripción

This description has been translated automatically and may not be accurate

referencia: 41239

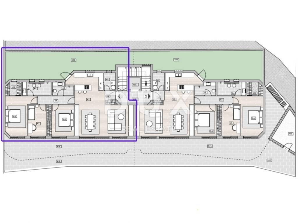
OPATIJA, CENTER - special new building in the center of Opatija, apartment with a garage and a beautiful sea view

Dux represents a top-quality new building that stands out as currently the closest to the sea and the very center of Opatija, and at the same time available on the market. This luxurious building is located in a quiet, dead-end street with no traffic, which provides complete privacy and silence, and yet is at an ideal distance so that you can easily walk, in just a few minutes, to the center of Opatija and the first beaches. Apartment S1 is located on the ground floor and covers 158 m, offering a high level of comfort and a functional layout. From the entrance hall you enter an open concept that combines the living room, kitchen and dining room into a harmonious, spacious and bright whole, ideal for socializing and relaxing. From this space you access an additional hallway that leads to three bedrooms and two bathrooms. The master bedroom has its own bathroom and dressing room, providing complete privacy and comfort. From each bedroom, as well as from the living room, it is possible to exit to a spacious terrace with a beautiful view of the sea, perfect for enjoying the outdoors. The apartment also has two practical storage rooms, and from the kitchen there is access to another uncovered terrace of 13 m, which further enriches the living space and allows you to enjoy the outdoor environment. This apartment also has three garage parking spaces and a storage room, which further increases the practicality and value of this property. The building is equipped with top-quality materials and technologies: - Schüco aluminum joinery (panorama version with thin profiles, tinted triple-layer glass) - first-class Italian ceramics - heat pump for each apartment + underfloor heating throughout the apartment - separate multi-split air conditioning system in each room - top-quality sanitary ware, floors and interior doors - elevator - garage with high ceilings - storage room for each apartment It is especially important to note that there is a very gentle downhill slope to the center of Opatija or the first beach, within a 5-minute easy walk, while by car it takes literally 60 seconds. This is a truly rare opportunity to purchase a property in Opatija that combines a prime location, luxurious amenities and impeccable construction quality. To arrange a viewing of the property, call the agent with confidence - consultation in German is possible.

Dear clients, the agency commission is charged in accordance with the General Terms and Conditions: www.dux-nekretnine.hr/opci-uvjeti-poslovanja

ID CODE: 41239

Marko Šutanovac
Agent s licencom
Mob: +385 91 189 8332
Tel: +385 91 480 8808
E-mail: marko@dux-nekretnine.hr
www.dux-opatija.com
Si deseas más información puedes hablar con Marko Šutanovac.
Características
Tipología
Piso
Contrato
Venta
Planta
Planta baja
Ascensor
Superficie
161 m²
Habitaciones
4
Dormitorios
3
Baños
2
Balcón
Terraza
Garaje, plazas de aparcamiento
1 en garaje privado
Aire acondicionado
Individual, frío/calor
Información del precio
Precio
€ 1
Precio del m²
0 €/m²
Eficiencia energética

Consumo de energia

A+

Descubre otros ángulos del inmueble
+5
Opciones adicionales

Contactar con el anunciante

O