Terreno urbanizable en Venta

€ 200.000
500 m²

Nota

Anuncio actualizado el 15/03/2026
Descripción

referencia: 39728

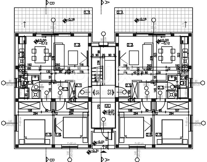
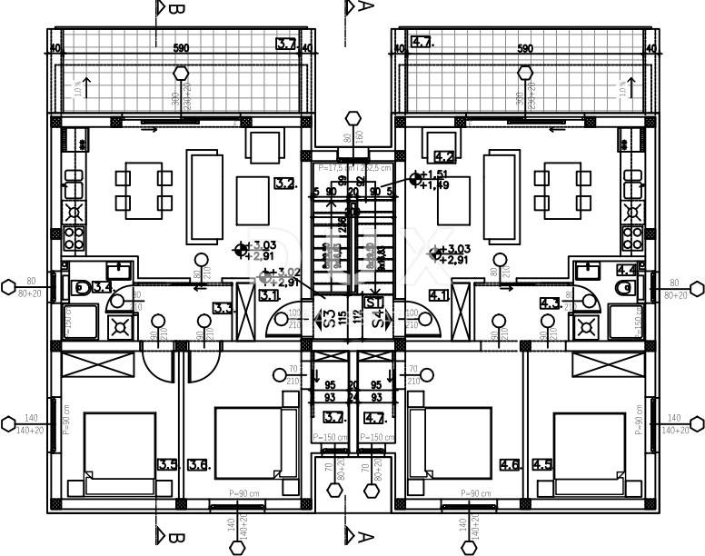
ZADAR, ZUKVE - Zemljište s ishođenom građevinskom dozvolom 300 m od mora! Moguća kompenzacija stanom!

Prodaje se atraktivno građevinsko zemljište površine 500 m2 s gotovim projektom za modernu zgradu s četiri stambene jedinice i već ishođenom građevinskom dozvolom. Zemljište se nalazi na izvrsnoj lokaciji svega 300 metara od mora, odnosno 56 minuta lagane šetnje do plaže. Prava prilika za investitore i graditelje koji traže gotovu i sigurnu investiciju s brzom realizacijom i izvrsnim povratom ulaganja.

Zemljište je u vlasništvu pravne osobe te se ne plaća porez na promet nekretnina.

Prodavatelj je otvoren i za dogovor o kompenzaciji postoji opcija da novi vlasnik ustupi jedan stan od planirane četiri jedinice u zamjenu za zemljište uz određenu nadoplatu. Ovakva fleksibilnost čini ovu ponudu još primamljivijom!

Zemljište se nalazi u mirnom i vrlo traženom dijelu Zukava, u blizini Vrsi i povijesnog Nina destinacija koje sve više dobivaju na vrijednosti zahvaljujući svojoj prirodnoj ljepoti, čistom moru i odličnom turističkom potencijalu. Grad Zadar, s bogatom ponudom sadržaja, zračnom lukom i cjelogodišnjim prometom, udaljen je svega 20-ak minuta vožnje.

Ovo je izvanredna prilika za sve koji žele odmah započeti s gradnjom bez čekanja na dozvole.

Javite nam se za više informacija i osobni obilazak!

Poštovani klijenti, agencijska provizija naplaćuje se u skladu s Općim uvjetima poslovanja:
www.dux-nekretnine.hr/opci-uvjeti-poslovanja

ID KOD AGENCIJE: 39728

Josip Šestan
Agent s licencom
Mob: +385 91 799 6986
Tel: +385 91 480 8808
E-mail: josip@dux-dalmacija.com
www.dux-dalmacija.com
Si deseas más información puedes hablar con Josip Šestan.
Características
Contrato
Venta
Tipología
Terreno urbanizable
Superficie
500 m²
Información del precio
Precio
€ 200.000
Precio del m²
400 €/m²
Descubre otros ángulos del inmueble
+12
Opciones adicionales

Contactar con el anunciante

O