Piso de tres habitaciones nuevo, planta baja, Rovinj

€ 877.200
3
88 m²
2
1
Terraza

Nota

Anuncio actualizado el 04/02/2026
Descripción

This description has been translated automatically and may not be accurate

referencia: 39242

ISTRIA, ROVINJ - Apartment 89 m2 on the ground floor with a garden!

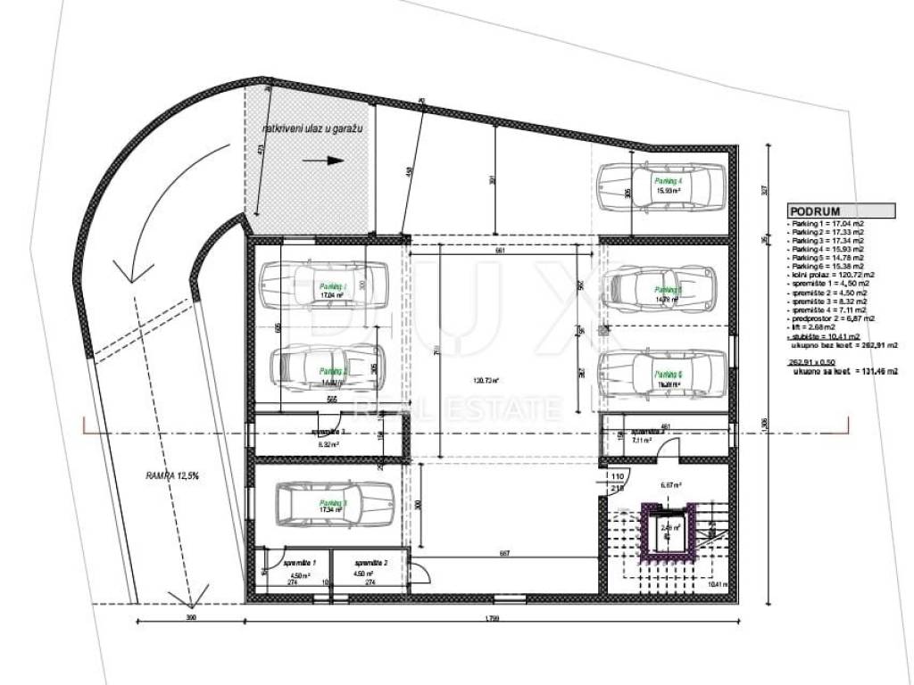
ROVINJ - A city located on the western coast of the Istrian peninsula, it was once a port and fishing village, and today it is one of the most developed tourist destinations with its unique combination of traditional and modern. It successfully combines the tradition of a fishing village with modern tourist trends, a rich gastronomic offer and a high standard of tourist service. That is why it attracts numerous visitors year after year and records a record 3 million overnight stays during the season. Due to its natural beauties such as the numerous islands that surround it and the crystal clear sea, guests return to it every year. We offer an apartment on the ground floor of a small residential building with only 4 apartments. It has an area of 89 m2 and consists of an entrance hall, 2 bedrooms each with their own bathroom, a toilet with a laundry room, a kitchen with a dining room and a spacious living room from which communication with the outside area and the garden is carried out through large glass walls. The building has an elevator that connects all floors, starting from the garage. The apartment is located 500 m from the sea and the main promenade. In the immediate vicinity there are all amenities such as shops, a market, public institutions, restaurants, cafe bars. Price on request! Don't miss this opportunity. Call us today and arrange your viewing!

Dear clients, we would like to point out that viewing the property and further actions related to the purchase and sale are possible only on the basis of a signed brokerage contract with our agency, on the basis of which we charge a brokerage commission in the event of the purchase and sale, all in accordance with the General Terms and Conditions www.dux-nekretnine.hr/opci-uvjeti-poslovanja

ID CODE: 39242

Gordana Grabar Čubrilo
Agent pripravnik
Mob: +385 91 555 8318
Tel: +385 91 480 8808
E-mail: gordana@dux-istra.com
www.dux-istra.com
Si deseas más información puedes hablar con Gordana Grabar Čubrilo.
Características
Tipología
Piso
Contrato
Venta
Planta
1
Ascensor
Superficie
88 m² | comercial 189 m²
Habitaciones
3
Dormitorios
2
Baños
2
Balcón
No
Terraza
Aire acondicionado
Individual, frío/calor
Detalle superficie

Vivienda

Planta
1
Superficie
88,0 m²
Coeficiente
100%
Tipo de superficie
Principal
Superficie construida
88,0 m²

Terreno

Planta
Planta baja
Superficie
101,0 m²
Coeficiente
100%
Tipo de superficie
Anexos
Superficie construida
101,0 m²
Información del precio
Precio
€ 877.200
Precio del m²
4.641 €/m²
Eficiencia energética
  • Año de construcción

    2026
  • Estado

    Nuevo / En construcción
  • Aire acondicionado

    Individual, frío/calor
  • Certificación energética

    Exento
Descubre otros ángulos del inmueble
+8
Anunciante
agent male

Gordana Grabar Čubrilo

ficha de agencia
Opciones adicionales

Contactar con el anunciante

O
agent male

Gordana Grabar Čubrilo