Casa unifamiliar 170 m², nueva, Labin

€ 345.000
4
170 m²
3

Nota

Anuncio actualizado el 04/02/2026
Descripción

This description has been translated automatically and may not be accurate

referencia: 32716

ISTRIA, LABIN - House with swimming pool under construction

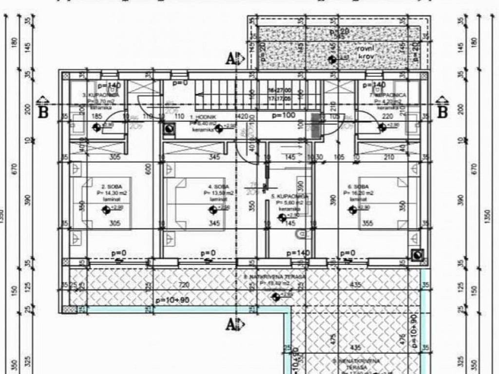
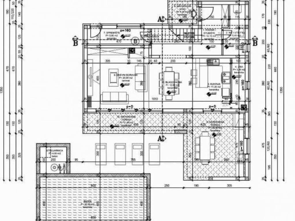
On the southeast coast of Istria, where the green hills meet the sea, where nature and heritage come together, there are two towns with different but mutually complementary characters - Labin and Rabac. The picturesque town of Labin rises on a hill 320 meters high, only four kilometers from the white pebble beaches in Rabac. Intertwined with rich history and mining that marked this region, Labin, which was declared an independent republic for a short time, is today a fascinating city of contradictions; old and new, history and present, tourism and art. Not far from the town of Labin, there is a house for sale with a swimming pool under construction. It is located in a gentle settlement whose location offers an authentic experience of a small Istrian town, intimacy and relief from all the hectic effort and noise, and at the same time close enough to the sea and the center of the town of Labin with a range of facilities. With its modern architecture, the house does not disturb the environment, but creates a synergy of natural surroundings and modern design. It was conceived as one residential unit that combines elegance, functionality and comfort on two floors. The ground floor consists of an open-concept space that unites the kitchen, dining room and living room with access to a covered terrace that contains a summer kitchen, guest toilet and storage. The first floor consists of an entrance hall, three bedrooms with private bathrooms and a partially covered terrace. The stated price refers to the construction of the residential building up to the stage of rough work, which includes preparatory work, excavation and installation of foundations, construction of external and dividing walls, roofing and sheet metal work and external carpentry. The price does not include finishing works, as well as landscaping of the garden and construction of the swimming pool. The excellent location and the spatial organization of the interior and exterior of this property provide an opportunity for a comfortable family life or an investment investment in a tourist rental business.

Dear clients, the agency commission is charged in accordance with the General Business Conditions: www.dux-nekretnine.hr/opci-uvjeti-poslovanja

ID CODE: 32716

Iva Zajc
Agent s licencom
Mob: +385 92 235 9472
Tel: +385 91 480 8808
E-mail: iva@dux-istra.com
www.dux-istra.com
Si deseas más información puedes hablar con Iva Zajc.
Características
Tipología
Casa unifamiliar
Contrato
Venta
Planta
1
Superficie
170 m² | comercial 1.180 m²
Habitaciones
4
Dormitorios
3
Baños
3
Balcón
No
Terraza
No
Otras características
  • Piscina
Detalle superficie

Vivienda

Planta
1
Superficie
170,0 m²
Coeficiente
100%
Tipo de superficie
Principal
Superficie construida
170,0 m²

Terreno

Planta
Planta baja
Superficie
1.010,0 m²
Coeficiente
100%
Tipo de superficie
Anexos
Superficie construida
1.010,0 m²
Información del precio
Precio
€ 345.000
Precio del m²
292 €/m²
Eficiencia energética
  • Año de construcción

    2023
  • Estado

    Nuevo / En construcción
  • Certificación energética

    Exento
Descubre otros ángulos del inmueble
+5
Opciones adicionales

Contactar con el anunciante

O