Piso de cuatro habitaciones nuevo, segunda planta, Centar, Luka, Finida, Umag

€ 569.168
4
121 m²
2
2
Terraza

Nota

Anuncio actualizado el 04/02/2026
Descripción

This description has been translated automatically and may not be accurate

referencia: 31902

ISTRIA, UMAG - Spacious apartment in a new building Umag is an attractive

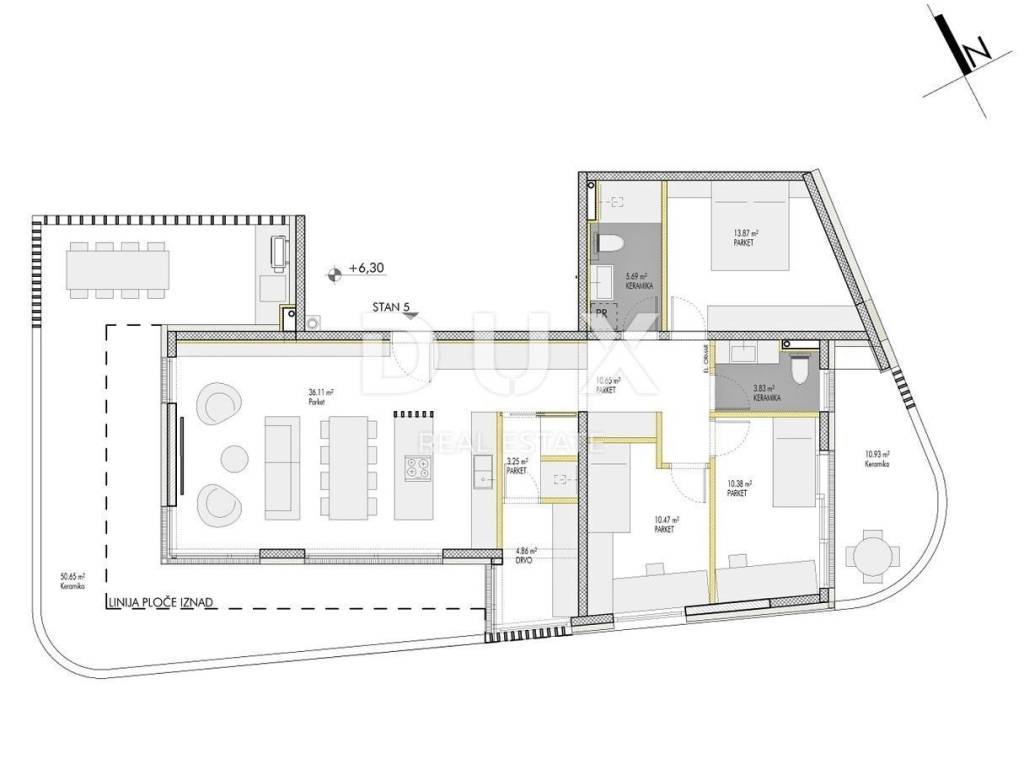
Istrian town located on the far west of the Croatian coast and is well connected to other European countries. Umag, the city of tourism and sports, hides a rich history that can be felt while walking along the beautiful streets and promenades along the sea, and the old buildings in combination with the modern parts of the coast are a great combination. The city and its surroundings are characterized by an extremely mild Mediterranean climate, a large number of sunny days and an exceptionally clean sea. Umag is a small town with a very branched and interesting coast with a variety of beaches. From sand and gravel, over stone and concrete to rocky beaches. In the hinterland there are beautiful hilly places-forts with incredible views and an amazing past, as well as many agritourisms with autochthonous delicacies and friendly hosts. Umag consists of 23 settlements. In the suburbs of the city of Umag, far enough from the crowds and noise but still close to the sea and all urban facilities, a residential building of modern architecture is under construction, which extends through the ground floor and two floors and contains a total of six residential units. In the construction, durable and reliable materials are used that guarantee long-term satisfaction and safety of living, including first-class sanitary ware and tiles, as well as aluminum carpentry with Stopsol glass and electric shutters. The building also has an elevator and the parking lot has a charging station for electric vehicles. The space planning of each floor was carried out in detail, which resulted in a combination of aesthetics, functionality and comfort of each apartment. The object of sale is an apartment with an area of 121.91 m, located on the second floor of the building. It consists of an open concept space that unites the kitchen, dining room and living room with access to a spacious terrace, three bedrooms, two bathrooms, a sauna with an entrance hall and a loggia. This apartment in a high-quality new building is an ideal opportunity for a comfortable family life as well as an investment for the purpose of tourist rental. The project is currently under construction and is for sale on a turnkey basis. The seller of the property in question is a legal entity. Dear clients, the agency commission is charged in accordance with the General Business Conditions: www.dux-nekretnine.hr/opci-uvjeti-poslovanja

ID CODE: 31902

Iva Zajc
Agent s licencom
Mob: +385 92 235 9472
Tel: +385 91 480 8808
E-mail: iva@dux-istra.com
www.dux-istra.com
Si deseas más información puedes hablar con Iva Zajc.
Características
Tipología
Piso
Contrato
Venta
Planta
2 planta
Ascensor
Superficie
121 m²
Habitaciones
4
Dormitorios
3
Baños
2
Balcón
No
Terraza
Aire acondicionado
Individual, frío/calor
Información del precio
Precio
€ 569.168
Precio del m²
4.704 €/m²
Eficiencia energética
  • Año de construcción

    2024
  • Estado

    Nuevo / En construcción
  • Aire acondicionado

    Individual, frío/calor
  • Certificación energética

    Exento
Descubre otros ángulos del inmueble
+10
Opciones adicionales

Contactar con el anunciante

O