Piso de cuatro habitaciones nuevo, Centar, Crikvenica

€ 365.000
4
110 m²
2
1

Nota

Anuncio actualizado el 04/02/2026
Descripción

This description has been translated automatically and may not be accurate

referencia: 26800

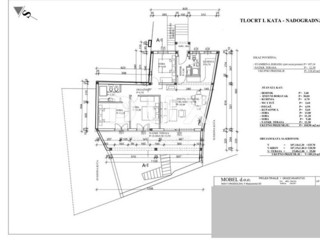
CRIKVENICA - Apartment in a new building with a beautiful view of the sea.

A 110m2 apartment is for sale in Crikvenica with a beautiful view of the sea. The property is located near the city center. The building is a reconstruction and upgrade. The apartment in the new building has three bedrooms, a living room, two bathrooms, a kitchen, a storage room and a balcony. Underfloor heating and air conditioning, the possibility of an agreement regarding the installation of a heat pump. ETICS facade system, Ytron ("white ceiling") roof substructure, Marlex PVC joinery. The apartment also has a storage room on the ground floor of 9m2, as well as its own private yard of 106m2 with two parking spaces. Completion of the works is planned for June 2024. The property is located in a quiet family environment. AGENT'S RECOMMENDATION. Dear clients, the agency commission is charged in accordance with the General Terms and Conditions. https://www.dux-nekretnine.hr/opci-uvjeti-poslovanja

ID CODE: 26800

DUX Nekretnine
Mob: +385 91 480 8808
Tel: +385 51 518 174
E-mail: info@dux-nekretnine.hr
www.dux-nekretnine.hr
Características
Tipología
Piso
Contrato
Venta
Planta
1
Superficie
110 m² | comercial 216 m²
Habitaciones
4
Dormitorios
3
Baños
2
Balcón
No
Terraza
No
Aire acondicionado
Individual, frío/calor
Detalle superficie

Vivienda

Planta
1
Superficie
110,0 m²
Coeficiente
100%
Tipo de superficie
Principal
Superficie construida
110,0 m²

Terreno

Planta
Planta baja
Superficie
106,0 m²
Coeficiente
100%
Tipo de superficie
Anexos
Superficie construida
106,0 m²
Información del precio
Precio
€ 365.000
Precio del m²
1.690 €/m²
Eficiencia energética
  • Estado

    Nuevo / En construcción
  • Aire acondicionado

    Individual, frío/calor
  • Certificación energética

    Exento
Descubre otros ángulos del inmueble
+2
Opciones adicionales

Contactar con el anunciante

O