map icon

Piso de tres habitaciones nuevo, primera planta, Dobrinj

Dobrinj
€ 225.000
3
71 m²
1
1

Nota

Anuncio actualizado el 17/11/2025
Descripción

This description has been translated automatically and may not be accurate

referencia: a-996

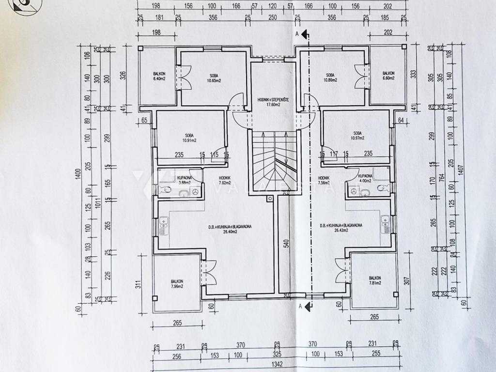
Real estate Island of Krk, Dobrinj area - for sale is an apartment on the first floor of a new building with a total living area of 71 m2 distributed in two bedrooms, bathroom, kitchen with dining room and living room and two covered terraces. He has one parking space in the common yard of the house. Quality materials and equipment are used for construction, including ceramic floor coverings, quality sanitary facilities, room air conditioning, built-in high-quality PVC carpentry with blinds and security doors. It is located in a quiet location 1500 m from the sea and beautiful beaches. The property is currently under construction, and the planned completion is expected at the end of 2025. VAT is included in the price and the buyer does not pay real estate sales tax.
Agency Vala Estate Malinska will provide you with a safe and transparent transfer of ownership and all necessary documentation.

ID CODE: a-996

VALA ESTATE d.o.o.
Mob: +385 99 444 0550
Tel: +385 51 568 917
E-mail: info@vala-estate.com
www.vala-estate.com
Características
Tipología
Piso
Contrato
Venta
Planta
1 planta
Superficie
71 m²
Habitaciones
3
Dormitorios
2
Baños
1
Balcón
No
Terraza
No
Otras características
  • Puerta blindada
Información del precio
Precio
€ 225.000
Precio del m²
3.169 €/m²
Eficiencia energética
  • Año de construcción

    2025
  • Estado

    Nuevo / En construcción
  • Certificación energética

    Exento
Descubre otros ángulos del inmueble
+12
Opciones adicionales

Contactar con el anunciante

O