map icon

Casa unifamiliar 149 m², nueva, Malinska

Malinska
€ 530.000
5
149 m²
2
Terraza

Nota

Anuncio actualizado el 17/11/2025
Descripción

This description has been translated automatically and may not be accurate

referencia: k-461

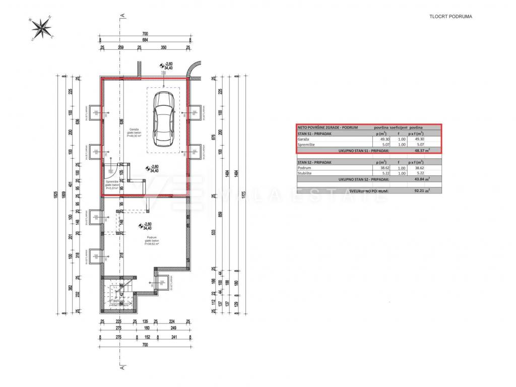
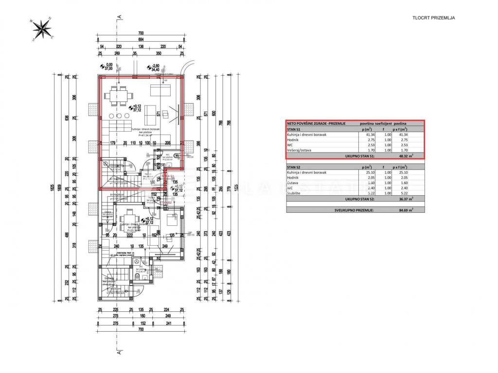
Real estate island Krk, Malinska - for sale is a new modern semi-detached house in a location only 650 m from the sea and the center with all amenities. The house occupies 149.77 m2 of living space distributed over basement, ground floor and first floor. In the basement there is a storage room and a room of 48.37 m2, part of which is arranged as a garage with access to the park area in front of the house, and the remaining part can be arranged as desired. The ground floor includes a hallway, toilet, pantry/laundry room, kitchen with dining room and living room with access to its own garden. Upstairs there are two bathrooms and three bedrooms, two of which have a view of the sea. In addition to the parking space in the garage, it also has one parking space in the common yard of the house. Quality materials and equipment are used for the construction, which include floor coverings made of high-quality ceramics, quality sanitary facilities, multisplit air conditioning in all rooms, underfloor heating, built-in high-quality PVC joinery and burglar-proof doors. The property is currently in the initial phase of construction, and the planned completion is expected by the summer of 2025.
Agency Vala Estate Malinska will provide you with a safe and transparent transfer of ownership and all necessary documentation.

ID CODE: k-461

VALA ESTATE d.o.o.
Mob: +385 99 444 0550
Tel: +385 51 568 917
E-mail: info@vala-estate.com
www.vala-estate.com
Características
Tipología
Casa unifamiliar
Contrato
Venta
Planta
1
Superficie
149 m² | comercial 219 m²
Habitaciones
5
Dormitorios
3
Baños
2
Balcón
No
Terraza
Garaje, plazas de aparcamiento
1 en garaje privado
Otras características
  • Puerta blindada
Detalle superficie

Vivienda

Planta
1
Superficie
149,0 m²
Coeficiente
100%
Tipo de superficie
Principal
Superficie construida
149,0 m²

Terreno

Planta
Planta baja
Superficie
70,0 m²
Coeficiente
100%
Tipo de superficie
Anexos
Superficie construida
70,0 m²
Información del precio
Precio
€ 530.000
Precio del m²
2.420 €/m²
Eficiencia energética
  • Año de construcción

    2024
  • Estado

    Nuevo / En construcción
  • Certificación energética

    Exento
Descubre otros ángulos del inmueble
+6
Opciones adicionales

Contactar con el anunciante

O