map icon

Casa unifamiliar 237 m², nueva, Malinska

Malinska
€ 910.000
5
237 m²
3
Balcón
Terraza

Nota

Anuncio actualizado el 17/11/2025
Descripción

This description has been translated automatically and may not be accurate

referencia: k-442

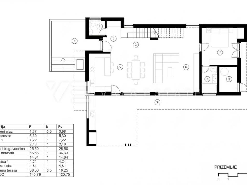
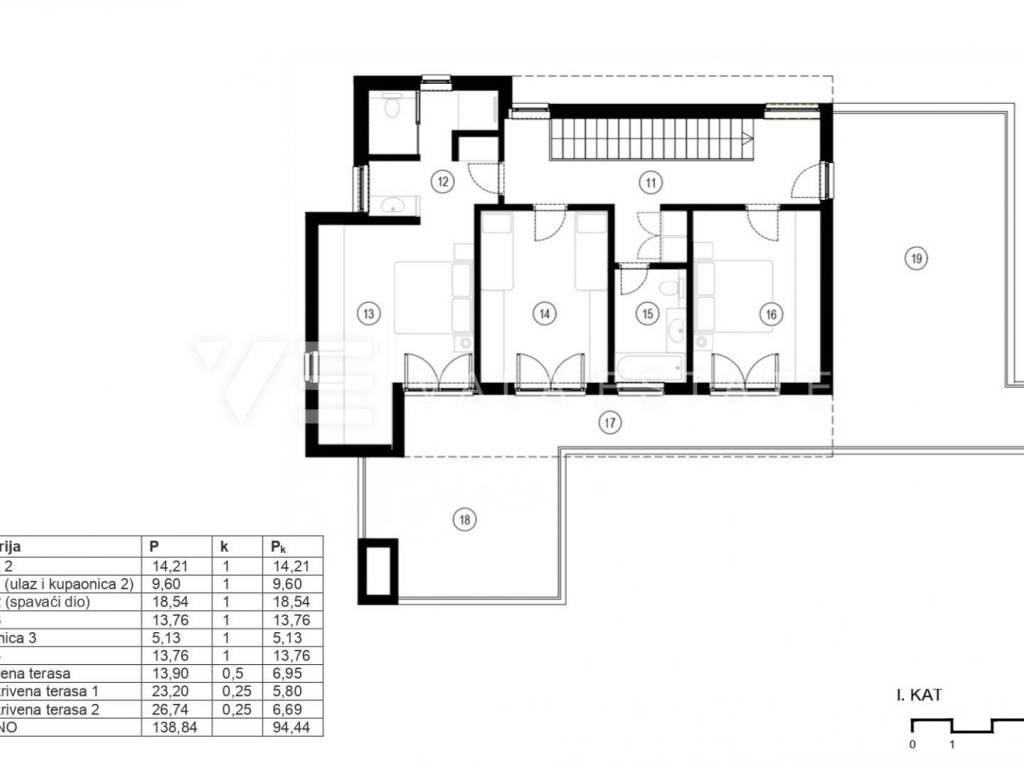
Real estate island Krk, Malinska region - in a quiet environment of family houses and nature, a new detached house for sale with a swimming pool and a large garden. The house is located on a plot of 880 m2 and is spread over two floors, which include a total of 215.19 m2 of living space. On the ground floor there is an entrance area, a technical room, a toilet, a bathroom, a bedroom, a kitchen and a dining area, and a living room with access to a covered terrace with a summer kitchen and grill. On the first floor there are two bathrooms and three bedrooms, one of which has its own bathroom, and each room has access to the terrace. Top quality materials will be used for the construction, floor coverings in a combination of ceramics and stone, top quality sanitary ware, PVC carpentry, floor heating with a heat pump, ceiling air-conditioned heating/cooling system and other high quality features. The exterior decoration and Mediterranean vegetation will give the villa privacy, and on the large fenced plot of 504 m2 there is an auxiliary building of 22.5 m2 that is intended for a sauna, jacuzzi and wellness area for relaxation, a large heated swimming pool of 46 m2 and two parking spaces . The location is quiet, approx. 3500 m from beautiful beaches. The property is currently under construction, and completion of the works and occupancy is planned by the end of 2024.
Agency Vala Estate Malinska will provide you with a safe and transparent transfer of ownership and all necessary documentation.

ID CODE: k-442

VALA ESTATE d.o.o.
Mob: +385 99 444 0550
Tel: +385 51 568 917
E-mail: info@vala-estate.com
www.vala-estate.com
Características
Tipología
Casa unifamiliar
Contrato
Venta
Planta
1
Ascensor
Superficie
237 m² | comercial 741 m²
Habitaciones
5
Dormitorios
4
Baños
3
Balcón
Terraza
Otras características
  • Puerta blindada
  • Piscina
Detalle superficie

Vivienda

Planta
1
Superficie
237,0 m²
Coeficiente
100%
Tipo de superficie
Principal
Superficie construida
237,0 m²

Terreno

Planta
Planta baja
Superficie
504,0 m²
Coeficiente
100%
Tipo de superficie
Anexos
Superficie construida
504,0 m²
Información del precio
Precio
€ 910.000
Precio del m²
1.228 €/m²
Eficiencia energética
  • Año de construcción

    2023
  • Estado

    Nuevo / En construcción
  • Certificación energética

    Exento
Descubre otros ángulos del inmueble
+13
Opciones adicionales

Contactar con el anunciante

O