map icon

Piso de cuatro habitaciones nuevo, planta baja, Centar, Krk

Krk
€ 730.000
4
136 m²
2
1
Terraza
Trastero

Nota

Anuncio actualizado el 17/11/2025
Descripción

This description has been translated automatically and may not be accurate

referencia: a-824

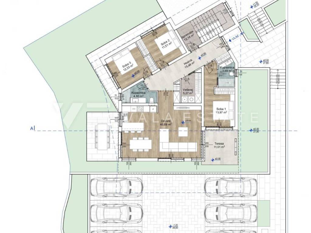
Real estate island Krk, city of Krk - for sale is a new luxury apartment on the ground floor of a new urban villa with a total of three residential units, living area 136.22 m2. The apartment consists of an entrance hall, a laundry room, a storage room, two bathrooms, three bedrooms, a kitchen with a dining room and a living room that leads to a covered terrace of 11 m2 and its own beautifully landscaped garden surrounded by nature. The apartment also has two parking spaces. High-quality construction and equipment, first-class ceramics and sanitary ware, aluminum carpentry with aluminum shutters, underfloor heating and multisplit air conditioning are the main features of this luxurious new building. The apartment is located in an excellent location in the town of Krk, only 500 m from the beaches and close to all amenities. The property is currently under construction, and the expected completion of the works and occupancy is expected by the end of 2025. The buyer does not pay real estate sales tax, VAT is included in the price.
Agency Vala Estate Malinska will provide you with a safe and transparent transfer of ownership of all necessary documentation.

ID CODE: a-824

VALA ESTATE d.o.o.
Mob: +385 99 444 0550
Tel: +385 51 568 917
E-mail: info@vala-estate.com
www.vala-estate.com
Características
Tipología
Piso
Contrato
Venta
Planta
1
Superficie
136 m² | comercial 286 m²
Habitaciones
4
Dormitorios
3
Baños
2
Balcón
No
Terraza
Otras características
  • Puerta blindada
Detalle superficie

Vivienda

Planta
1
Superficie
136,0 m²
Coeficiente
100%
Tipo de superficie
Principal
Superficie construida
136,0 m²

Terreno

Planta
Planta baja
Superficie
150,0 m²
Coeficiente
100%
Tipo de superficie
Anexos
Superficie construida
150,0 m²
Información del precio
Precio
€ 730.000
Precio del m²
2.552 €/m²
Eficiencia energética
  • Año de construcción

    2025
  • Estado

    Nuevo / En construcción
  • Certificación energética

    Exento
Descubre otros ángulos del inmueble
+9
Opciones adicionales

Contactar con el anunciante

O