1/7


Piso de tres habitaciones nuevo, primera planta, Novi Marof
€ 164.052
Anuncio actualizado el 19/11/2025
Descripción
referencia: VZ3129
ID CODE: VZ3129
Danijel Kukec
Asistent u posredovanju
Mob: 099/384-1510
Tel: 042/562-017
E-mail: danijel.kukec@dogma-nekretnine.com
www.dogma-nekretnine.com
Características
- Tipología
- Piso
- Contrato
- Venta
- Planta
- 1 planta
- Ascensor
- Sí
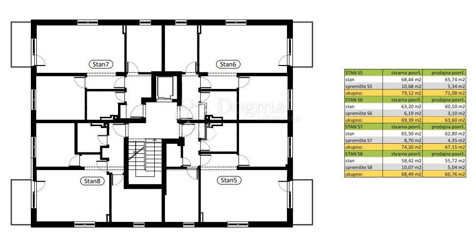
- Superficie
- 60 m²
- Habitaciones
- 3
- Dormitorios
- 3
- Baños
- 1
- Balcón
- Sí
- Terraza
- No
- Aire acondicionado
- Individual, frío/calor
Información del precio
- Precio
- € 164.052
- Precio del m²
- 2.734 €/m²
Eficiencia energética
Descubre otros ángulos del inmueble
Opciones adicionales