map icon

Casa unifamiliar 144 m², Centar, Luka, Finida, Umag

Umag
€ 495.000
5
144 m²
3
Balcón
Terraza

Nota

Anuncio actualizado el 18/11/2025
Descripción

This description has been translated automatically and may not be accurate

referencia: IS1516800

In a peaceful and highly attractive location near Umag, just 500 meters from the sea, lies this modern luxury semi-detached house with a total area of 144 m and a 290 m garden. Elegantly integrated into the Mediterranean surroundings, this property offers a perfect blend of comfort, quality construction, and high functionality ideal as a family home, vacation retreat, or luxury rental investment.

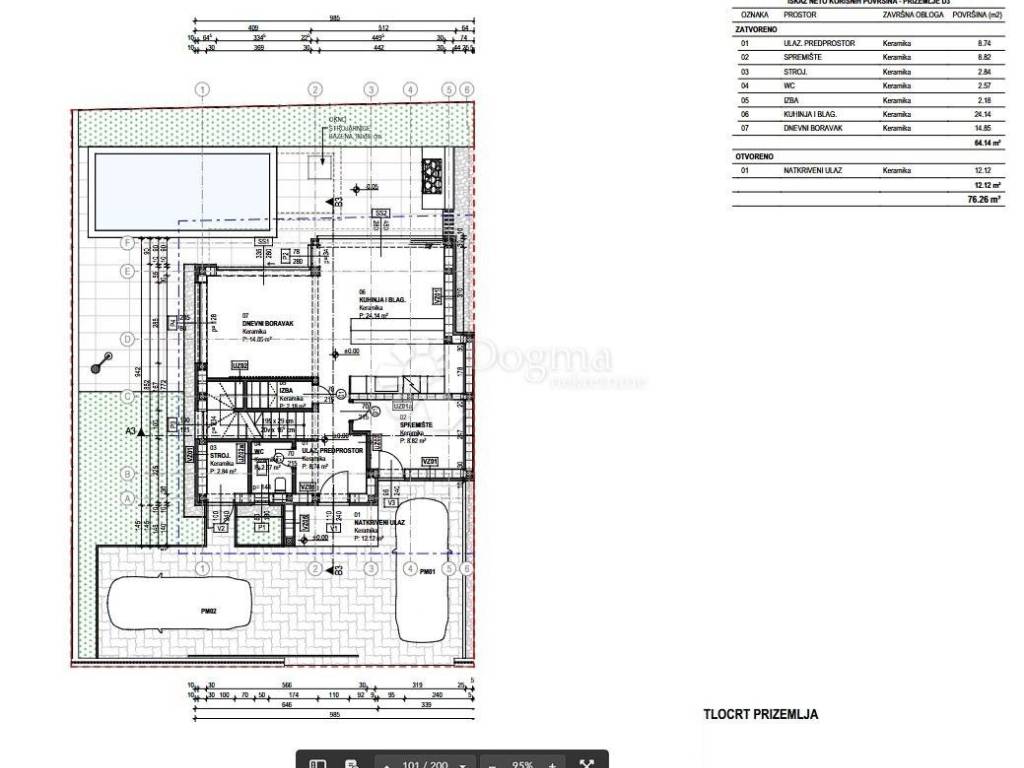
The house is spread over two floors. The ground floor features a spacious open-plan living room and kitchen with a dining area, with direct access to a covered terrace and private swimming pool a perfect spot for relaxation and enjoyment on warm days. This floor also includes a storage room, laundry room, and guest toilet. On the exterior, there is also a boiler room.

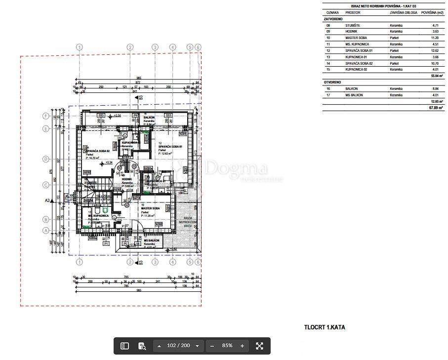
The first floor houses three bedrooms, each with its own modern en-suite bathroom, ensuring complete privacy and comfort. The master bedroom also has access to a private balcony offering a beautiful view of the surroundings.

The house will be equipped with underfloor heating via a heat pump, while each room will have its own air conditioning unit, allowing full control over the indoor climate.

The garden includes two parking spaces, one of which is covered, adding an extra level of practicality and convenience. This property offers a perfect combination of contemporary design, luxury, and proximity to the sea everything you need for carefree living or a high-end tourism investment.

ID CODE: IS1516800

Karlo Šestan
Asistent u posredovanju
Mob: 091/361-1922
Tel: 052 770 811
E-mail: karlo.sestan@dogma-nekretnine.com
www.dogma-istra.com
Si deseas más información puedes hablar con Karlo Šestan.
Características
Tipología
Casa unifamiliar
Contrato
Venta
Planta
1
Ascensor
Superficie
144 m² | comercial 434 m²
Habitaciones
5
Dormitorios
3
Baños
3
Balcón
Terraza
Otras características
  • Piscina
Detalle superficie

Vivienda

Planta
1
Superficie
144,0 m²
Coeficiente
100%
Tipo de superficie
Principal
Superficie construida
144,0 m²

Terreno

Planta
Planta baja
Superficie
290,0 m²
Coeficiente
100%
Tipo de superficie
Anexos
Superficie construida
290,0 m²
Información del precio
Precio
€ 495.000
Precio del m²
1.141 €/m²
Eficiencia energética
  • Año de construcción

    2025
  • Certificación energética

    Exento
Descubre otros ángulos del inmueble
+7
Opciones adicionales

Contactar con el anunciante

O