Terreno urbanizable en Venta

€ 150.000
1.264 m²

Nota

Anuncio actualizado el 19/11/2025
Descripción

referencia: ZG71128

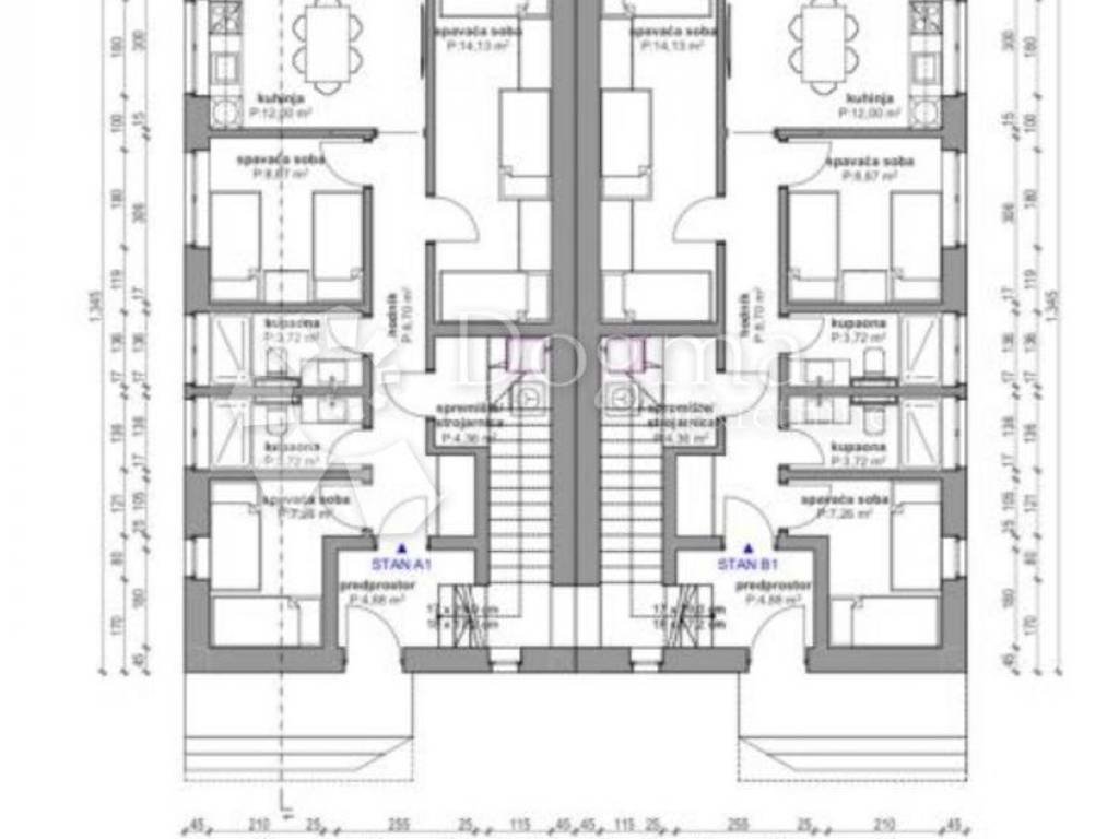
Iz ponude izdvajamo građevinsko zemljište u blizini Ivanja Reke koje nudi odličnu priliku za investitore.

S površinom od 1264 m2 i projektom za dvije poluugrađene građevine sa ukupno 4 stana, donosi potencijal za razvoj. . Dostupni su svi potrebni priključci.

Nalazi se u mirnom susjedstvu, što ga čini idealnim za obitelji s djecom. Velika okućnica pruža dodatni prostor za aktivnosti na otvorenom, dok je blizina svih sadržaja još jedan plus.

Blizina Čulinečke ceste i Slavonske avenije te ZET-ove autobusne linije čini ga odlično prometno povezanim.

Ovo bi moglo biti sjajno ulaganje za one koji traže priliku za razvoj nekretnina u ovoj regiji.

Za sva pitanja i dogovore kontaktirajte me sa povjerenjem!

Vaš agent:
LIDIJA MATIJEVIĆ
Mob: 0953721999

ID KOD AGENCIJE: ZG71128

Lidija Matijević
Asistent u posredovanju
Mob: 095/372-1999
Tel: 01/647-3011
E-mail: lidija.matijevic@dogma-nekretnine.com
www.dogma-zagreb.com
Si deseas más información puedes hablar con Lidija Matijević.
Características
Contrato
Venta
Tipología
Terreno urbanizable
Superficie
1.264 m²
Información del precio
Precio
€ 150.000
Precio del m²
119 €/m²
Descubre otros ángulos del inmueble
+16
Opciones adicionales

Contactar con el anunciante

O