Piso de tres habitaciones nuevo, segunda planta, Centar, Luka, Finida, Umag

€ 280.000
3
77 m²
2
2
No

Nota

Anuncio actualizado el 24/03/2026
Descripción

This description has been translated automatically and may not be accurate

referencia: 149

For sale is an apartment on the second floor of a modern new development located in a quiet and well-maintained neighborhood near Umag, just one kilometer from the beach and crystal-clear sea. The apartment occupies the entire floor of the building. The location is ideal for those seeking peace and privacy while still being close to the city and all necessary amenities.

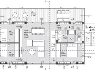
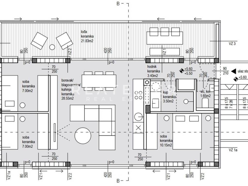
The apartment has a private entrance, and the layout includes a hallway, three bedrooms, a bathroom, a separate toilet, and a spacious living room with a dining area that opens onto an impressive loggia. The apartment comes with designated parking spaces within the buildings courtyard.

The building consists of a total of four residential units, ensuring a more peaceful and pleasant living environment. The property is sold on a "turnkey" basis, with completion expected in autumn 2025.

A smaller residential unit is currently also available in the same building, which may be interesting to buyers looking for extra space or considering investment in multiple properties at the same location.

This apartment is a great choice for year-round living, a holiday home, or tourist rental.
Características
Tipología
Piso
Contrato
Venta
Planta
2 planta
Plantas del edificio
2
Ascensor
No
Superficie
77 m²
Habitaciones
3
Dormitorios
3
Baños
2
Amueblado
No
Garaje, plazas de aparcamiento
1 en aparcamiento/garaje público
Aire acondicionado
Frío/calor
Información del precio
Precio
€ 280.000
Precio del m²
3.636 €/m²
Eficiencia energética
  • Año de construcción

    2025
  • Estado

    Nuevo / En construcción
  • Aire acondicionado

    Frío/calor
  • Certificación energética

    Exento
Descubre otros ángulos del inmueble
+4
Opciones adicionales

Contactar con el anunciante

O